EasyManua.ls Logo

York H1DS048 - De-Humidification Control; Cooling Only

York H1DS048
12 pages
Print Icon
To Next Page IconTo Next Page
To Next Page IconTo Next Page
To Previous Page IconTo Previous Page
To Previous Page IconTo Previous Page
Loading...
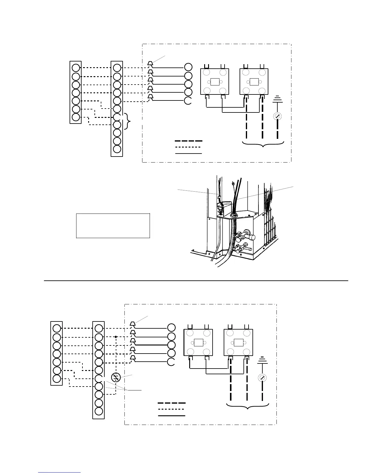
All outdoor wiring must be
weatherproof. Use copper
conductors only.
POWER WIRING
208/230-1-60
CONTACTOR
GRD.
SCREW
M2
T1
L1
L2
OUTDOOR UNIT
T2
CONTACTOR
M1
T1
L1
L2
T2
TYPICAL
TWO STAGE
COOLING
THERMOSTAT
MUST BE
USED
POWER
CONTROL
FACTORY
WIRE NUT
BRN
YEL
BLU
BLK
INDOOR
VARIABLE SPEED AIR
HANDLER / FURNACE
TERMINAL BOARD
RED
W1
G
W2
C
R
Y2
Y1
Y
G
W2
BK
X
O
C
R
Y2
Y1
C
R
Y2
Y1
Y2 OUT
W/W1
DE-HUMIDIFICATION
CONTROL CONNECTION
(JUMPER MUST BE REMOVED)
FOR ELECTRIC HEAT ONLY
(CLASS 2 WIRING)
(CLASS 1 WIRING)
FIGURE 8 - TYPICAL FIELD WIRING
POWER
WIRING
CONTROL
WIRING
COOLING
WITH
DE-HUMIDIFICATION
CONTROL
FIGURE 9 - TYPICAL FIELD WIRING WITH
POWER WIRING
208/230-1-60
CONTACTOR
GRD.
SCREW
M2
T1
L1
L2
OUTDOOR UNIT
T2
CONTACTOR
M1
T1
L1
L2
T2
TYPICAL
TWO STAGE
COOLING
THERMOSTAT
MUST BE
USED
POWER
CONTROL
FACTORY
WIRE NUT
BRN
YEL
BLU
BLK
INDOOR
VARIABLE SPEED AIR
HANDLER / FURNACE
TERMINAL BOARD
RED
W1
G
W2
C
R
Y2
Y1
Y
G
W2
BK
X
O
C
R
Y2
Y1
C
R
Y2
Y1
Y2 OUT
W/W1
FOR ELECTRIC HEAT ONLY
(CLASS 2 WIRING)
(CLASS 1 WIRING)
COOLING
ONLY
DE-HUMIDIFICATION CONTROL
550.37-N1Y
Central Environmental Systems 7

Related product manuals