EasyManua.ls Logo

York ZJ120 - ZJ078-150 Unit Accessory Weights; Unit 4 Point Load Weight; Unit 6 Point Load Weight; Center of Gravity

York ZJ120
74 pages
To Next Page IconTo Next Page
To Next Page IconTo Next Page
To Previous Page IconTo Previous Page
To Previous Page IconTo Previous Page
Loading...
1183875-YIM-A-1014
Johnson Controls Unitary Products 9
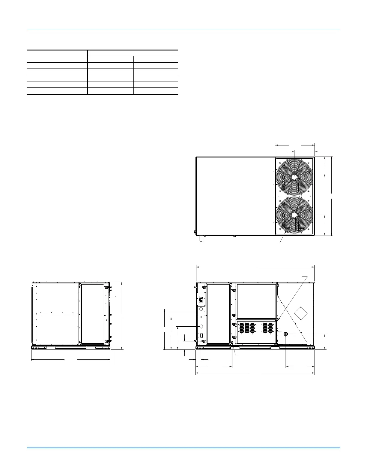
Figure 8: ZJ078-120 Physical Dimensions
Table 3: ZJ078-150 Unit Accessory Weights
Unit Accessory
Weight (lbs.)
Shipping Operating
Economizer 90 85
Power Exhaust 40 35
Electric Heat
1
1. Weight given is for the maximum heater size available
(54KW).
49 49
Gas Heat
2
2. Weight given is for the maximum number of tube heat
exchangers available (8 tube).
110 110
Variable Frequency Drive
3
3. Weight includes mounting hardware, controls and manual
bypass option.
30 30
LEFT
A
59.00
C
D
E
F
4.19
27.31
89.00
21.19
11.38
15.38
59.00
15.38
29.69
15.25
FRONT
SEE DETAIL B
FOR DRAIN LOCATION
SEE DETAIL A FOR GAS INLET
B
2X Ø 24.38

Table of Contents

Related product manuals