EasyManua.ls Logo

ZEKS 1000HSFA400 - GENERAL ARRANGEMENT

ZEKS 1000HSFA400
34 pages
Print Icon
To Next Page IconTo Next Page
To Next Page IconTo Next Page
To Previous Page IconTo Previous Page
To Previous Page IconTo Previous Page
Loading...
30
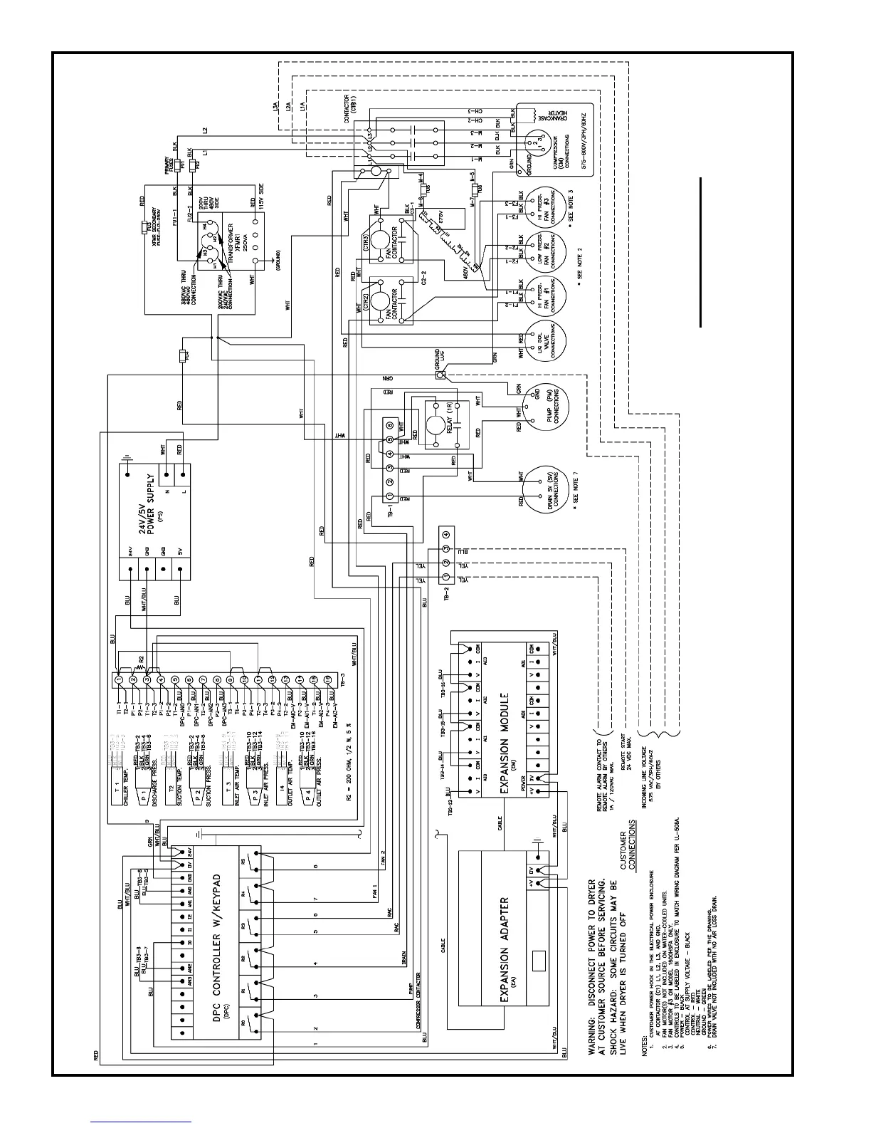
WIRING DIAGRAM
1200HSFA, 1600HSFA&W with DPC™-PLUS
575V/3/60HZ
with Transformed 460V Fans
TM500520F

Related product manuals