EasyManua.ls Logo

Zepro 31799 - Inkoppling Av Vinkelgivare För Varningsbelysning; Connecting of Angle; Sensor for Warning Lights

Zepro 31799
20 pages
Print Icon
To Next Page IconTo Next Page
To Next Page IconTo Next Page
To Previous Page IconTo Previous Page
To Previous Page IconTo Previous Page
Loading...
74285TL
9
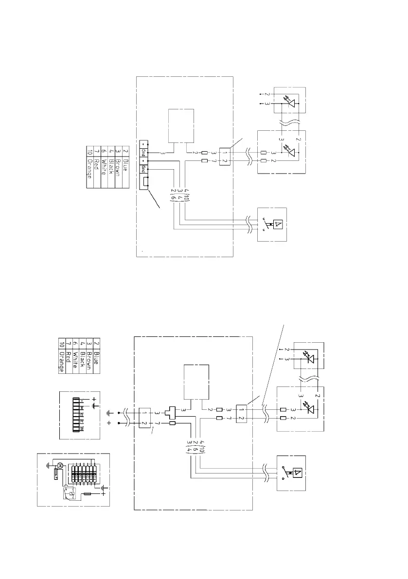
Vinkelgivare / Angle sensor 31799
Varningsbelysning / Warning lights
54349-50
Lång kabel (6,5m)
till varningslampor
Long Cable (6.5m)
warning lights
Vinkelbrytare-brygga
Angle Switch-platform
Kopplingsbox
Connection box
Kort kabel (3m) till hydraulenhet
Short cable (3m) to the hydraulic
unit
Relä kort
Relay card
Blink enhet
Flash unit
Inget relä kort
No relay card
Version med nr. kabel
Version w. number cable
Varningslampor brygga
Warning lights platform
Varningsbelysning / Warning lights
65601, 69637
Inkoppling av vinkelgivare för varningsbelysning /
Connecting of angle sensor for warning lights.