EasyManua.ls Logo

Zero Zone Highlight MERCHANDISER RHZC30 - X83; Single Point Connection - Low Temp

Zero Zone Highlight MERCHANDISER RHZC30
53 pages
Print Icon
To Next Page IconTo Next Page
To Next Page IconTo Next Page
To Previous Page IconTo Previous Page
To Previous Page IconTo Previous Page
Loading...
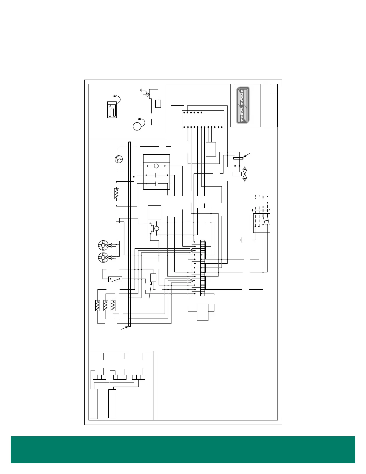
Illustrations - Single Point Connection Wiring • 43
ILLUSTRATIONS
Single Point Connection Wiring
FIGURE 29: LOW TEMP











   




 
 







ORG 18 GA
ORG
18 GA
LIGHTS
(SEE AUX
DIAGRAM
ORG OR
BLK
WHT
ABCDEFGH1234 5
SAFETY CUT OUT
THERMOS TA T
W/ BROWN LEA DS
SET TO 85°F
OPEN ON RIS E
BRN BRN
DEFROS T
BLK BLK
P
OPTIONAL
CONDENSATE
PUMP
115V-1-60
WHT
BLK
OPTIONA L
TO TB 4
TO TB G
SOLENOID VA LVE
120VAC
WHT/BLU
18 GA
BLU 18 GA
REPRESENTS
EGRESS
THROUGH
CASE
RED 18 GA
BL K
RED
WHT/RED
BLK
WHT 18 GA
DOOR
SILL
MULLION
LIGHT SWITCH
REPRESENTS
EGRESS
THROUGH CAS E
FANS
M M
BLU (RIBBED)
BLU (S MOOTH)
CB
ORG
18 GA
ON 4 & 5
DOOR
ONLY
20 AMPS
BLU
14 GA
GRD
OPTIONA L
CONDENS ATE EVA PORA TOR 115V-1- 60
MOUNTED ON TOP OF CAS E
PLUGGED INTO CONDENS ING UNIT
OR POWERED BY CUS TOMER
1
2
3
4
5
6
7
8
9
10
11
12
13
14
15
16
17
18
CA REL CONTROLLER
120V
SEE
DETAIL
GREEN
18 GA
TEM P PROBE
(DIS CHA RGE AIR)
8
EVA P PROBE
(DEF ROST TERM )
ORANGE
18 GA
9
WHITE
18 GA
10
FROM CAREL
CONTROLLER
46
01
R ELA Y
SPDT
30A,
120VAC
L1L2
T1T2
A2
A1
CONTACTOR
2PDT 35A, 120VAC
ON
GREEN
WHITE
BLA CK
RED
OFF
GRN
12 GA
WHT
12 GA
BLK
12 GA
RED
12 GA
PRPL
18 GA
WHT 18 GA
BLK 14 GA
YELW 14 GA
PRPL 14 GA
RED W/GRY 12 GA
BLK W /GRY 12 GA
BRN 18 GA
WHT
14 GA
WHT
18 GA
4X4 ELEC BOX
CUS TOMER
CONNECTIONS
115-208/ 230V-1-60
CB
BRN
14 GA
OPTIONA L

Table of Contents

Related product manuals