EasyManua.ls Logo

Zline 36" - Electrical Installation Requirements; Grounding and Receptacle Type; Installation Adjacent to Kitchen Cabinets; Cabinet Clearances and Dimensions

Zline 36"
29 pages
Print Icon
To Next Page IconTo Next Page
To Next Page IconTo Next Page
To Previous Page IconTo Previous Page
To Previous Page IconTo Previous Page
Loading...
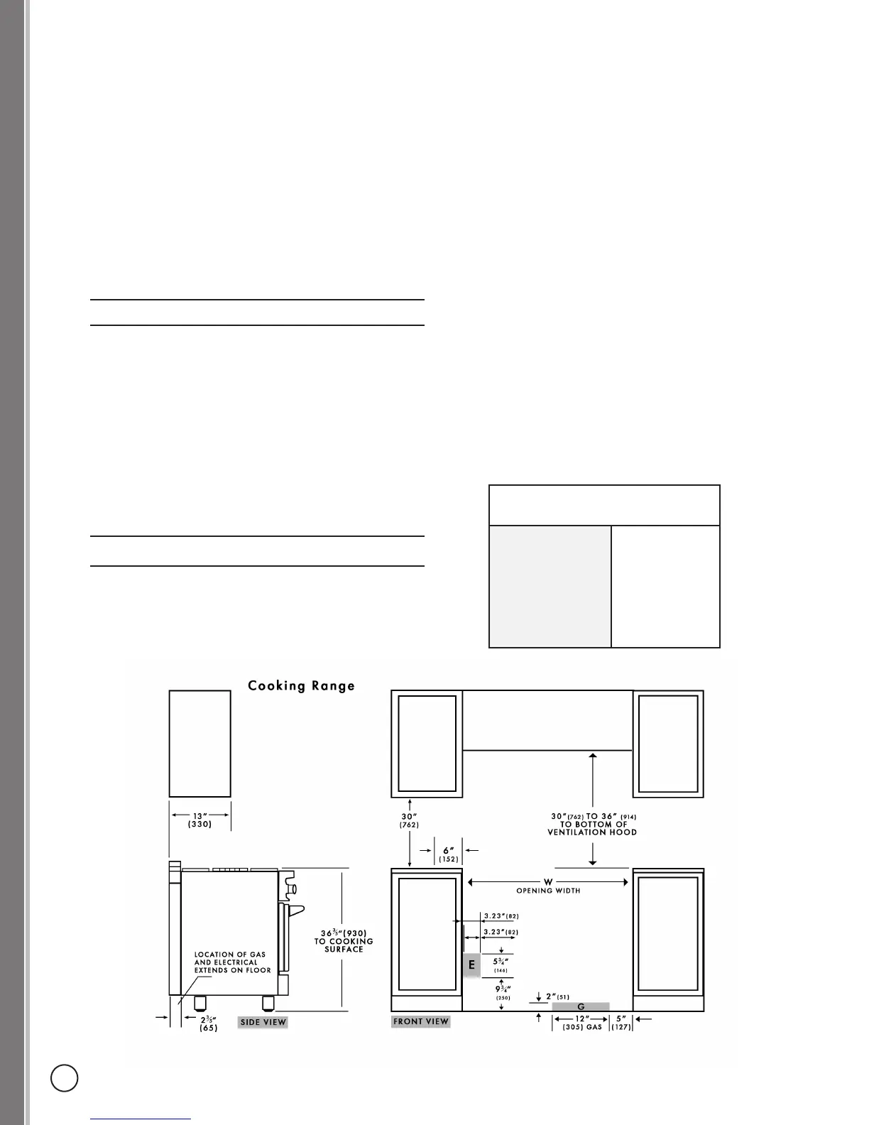
A properly grounded and horizontally-mounted
electrical receptacle Type NEMA 14-50R should
be installed no higher than 3 (7.6cm) above the
oor, no less than 2 (5 cm) and not more than 8
(20.3cm) from the le side (facing product); refer to
Electrical connection section page 10. Check all lo-
cal code requirements.
Gas
An agency-approved, properly-sized manual shut-
o valve should be installed no higher than 3
(7.6cm) above the oor and no less than 2 (5cm)
and no more than 8 (20.3cm) from the right side
(facing product).
To connect gas between shut-o valve and regulator,
use agency-approved, properly-sized exible or rigid
pipe. Check all local code requirements.
Installation Adjacent to Kitchen Cabinets
e range may be installed directly adjacent to exist-
ing countertop height cabinets (36 or 91.5cm) from
the oor.
30 Model
36 Model
48 Model
60 Model
Opening Width
30 (757)
36 (910)
48 (1215)
60 (1520)
Electrical Installation Requirements
For the best look, th
e worktop should be level with the
cabinet countertop. is can be accomplished by rais-
ing the unit using the adjustment spindles on the legs.
ATTENTION: the range CANNOT be installed
directly adjacent to kitchen walls, tall cabinets,
tall appliances, or other vertical surfaces above 36
(91.4cm) high. e minimum side clearance is such
cases in 6” (15.2cm).
Wall cabinets with minimum side clearance must
be installed 30 above the countertop with coun-
tertop height between 35.5" (90.2cm) and
37.25" (94.6cm). The maximum depth of wall
cabinets above the range shall be 13" (33 cm).
8

Related product manuals