EasyManua.ls Logo

Zline RG36 - Page 15

Zline RG36
40 pages
Print Icon
To Next Page IconTo Next Page
To Next Page IconTo Next Page
To Previous Page IconTo Previous Page
To Previous Page IconTo Previous Page
Loading...
9
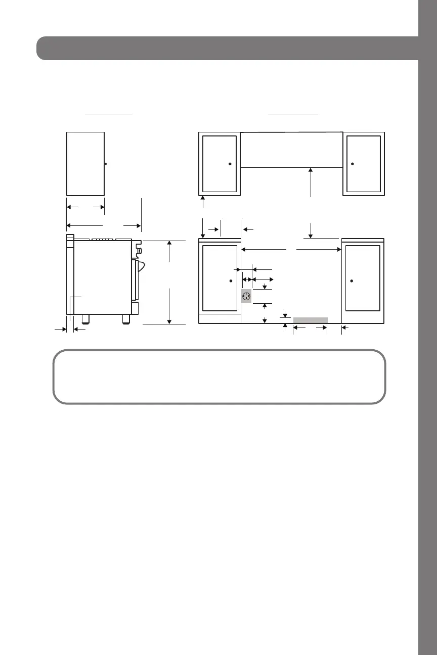
Installation Requirements
Opening Width
30” Model 30”
36” Model 36”
Cooking Range
13
location of gas
and electrical
extends on floor
36-38”
to cooking
surface
30” to 36”
to bottom of
ventilation hood
W
opening width
30”
6”
Front View
Side View
2 ³/₄”
3.23”
3.23”
5 ³/₄”
9 ³/₄”
12”
gas
5”
gas
2”
27 ¹/₂”
18
8”