EasyManua.ls Logo

Zodiac EVAC 90 - Installation

Zodiac EVAC 90
14 pages
Print Icon
To Next Page IconTo Next Page
To Next Page IconTo Next Page
To Previous Page IconTo Previous Page
To Previous Page IconTo Previous Page
Loading...
EVAC reserves the right to make alterations to this specification without prior notice.
© Copyright Evac Oy. All rights reserved.
1
EVAC
Commercial Marine Equipment
VV
VV
V
AA
AA
A
CUUM CUUM
CUUM CUUM
CUUM
TT
TT
T
OILETOILET
OILETOILET
OILET
INSTALLATION
Date:
Doc.
25 Jan 2005 2:112D
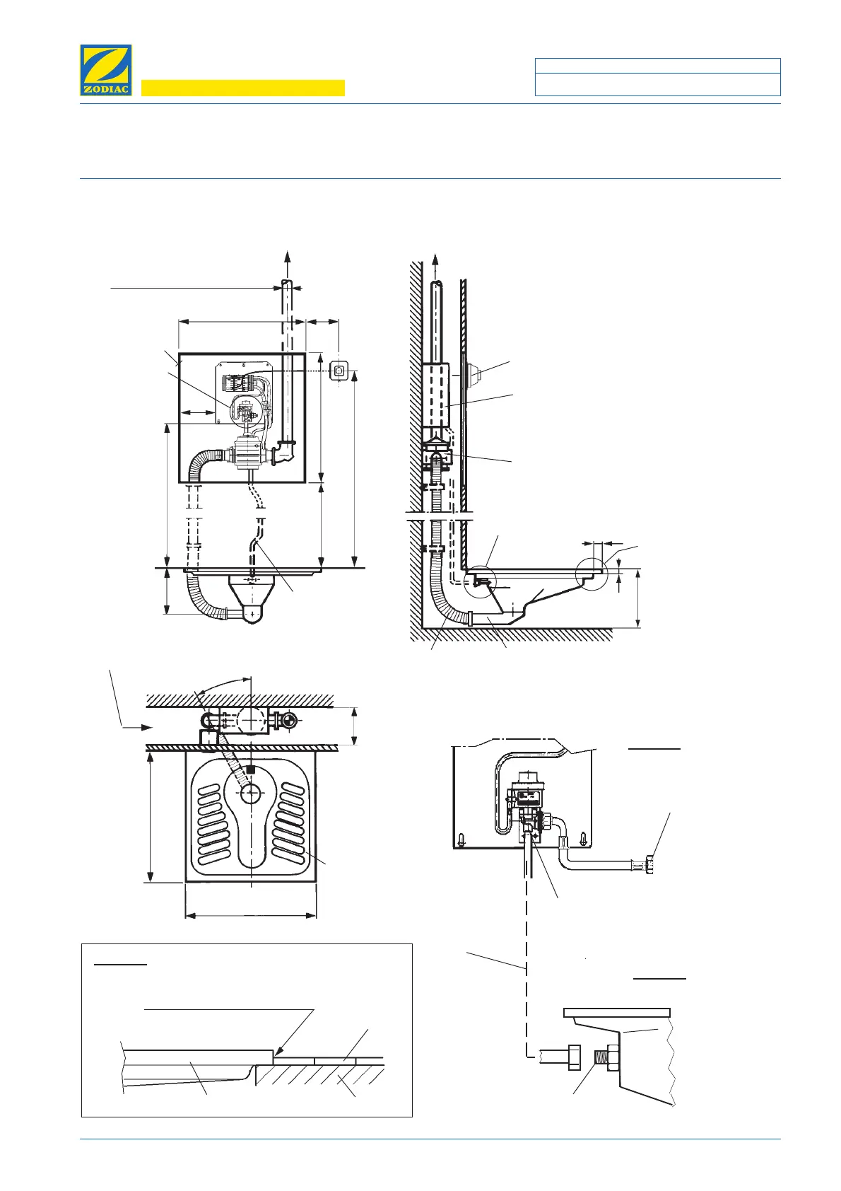
5979301 EVAC 90, SQUATTING TOILET
Flexible control hoses between mechanism, discharge valve and push button device are marked in different colours for
correct identification.
! NOTE: Connection elbow between
discharge valve and main vacuum line is
turnable 360°. Different positions can be used.
Straight connection tube can be used instead
of elbow. Connection upwards shown only as
an example.
700
Tiling
Floor
Water connection
Flushing water connection
R 1/2" BSP
Flushing water
connection R 1/2" BSP
Flushing water
hose
Detail B
Detail A
Fresh water connection
R 1/2" BSP
Detail C
Installation example
Squatting pan
Sealing material (Silicone)
around the pan
700 700
170
Service door
1000
600
1300
Detail A
Connection to main
vacuum line Ø50
Outlet pipe (Ø50) to be cut if necessary
Flushing mechanism
Push button
Discharge valve
100
Detail B
Flushing water
supply hose
Min. bend radius 100
20
Min.350
317
Around 25
Access to be provided for
service
Detail C
Squatting pan,
stainless steel
20°
700
Min. 200

Related product manuals