EasyManua.ls Logo

ABB CS500 - Page 19

ABB CS500
27 pages
Print Icon
To Next Page IconTo Next Page
To Next Page IconTo Next Page
To Previous Page IconTo Previous Page
To Previous Page IconTo Previous Page
Loading...
1SBD370000F1000 Page 19/27
ABB Entrelec
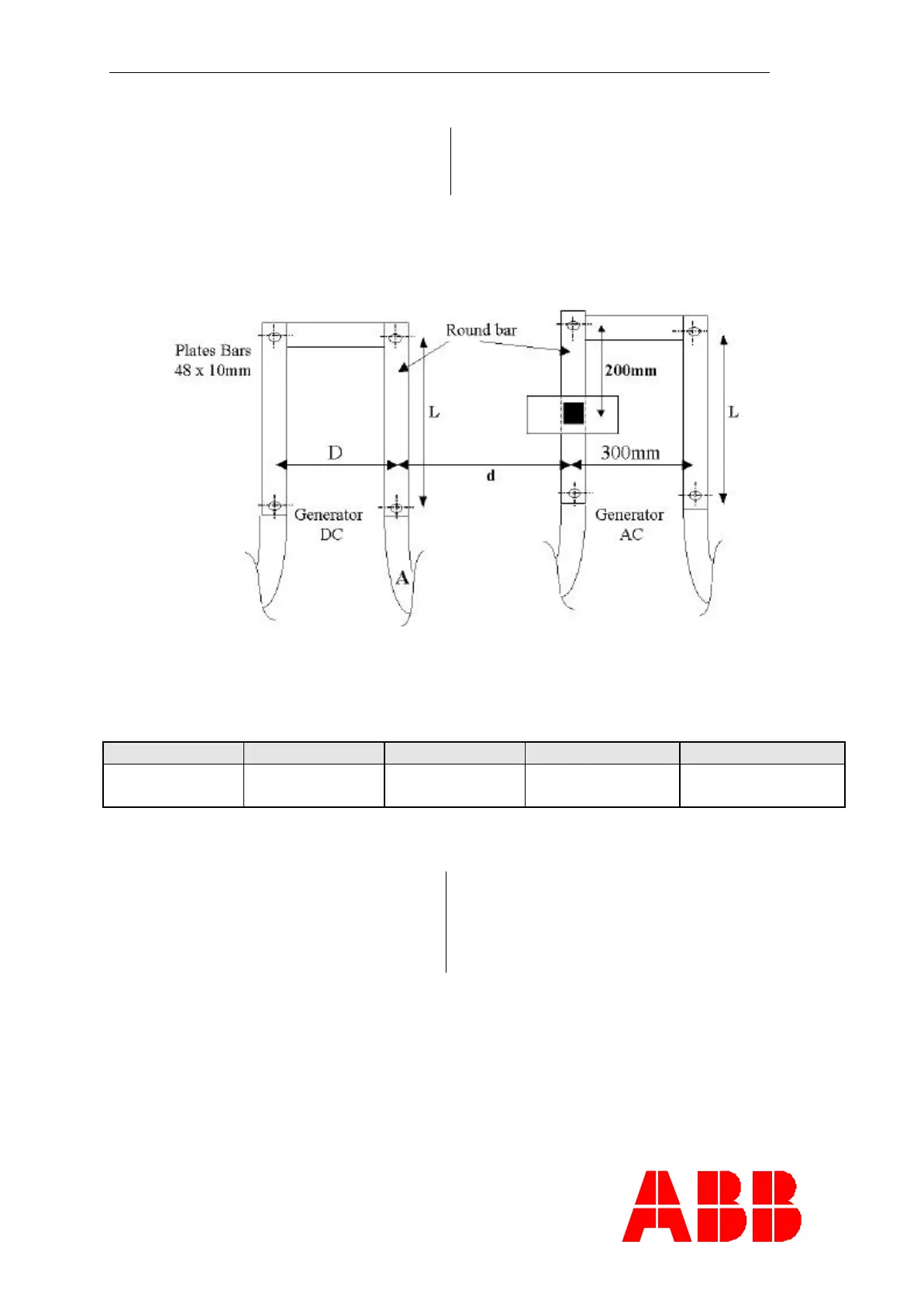
3 - External bars configuration
3 Configuration barres externes
Parameters / Paramètres
Sensor D d Rectangular Bar Round Bar
CS500 and
CS1000
160mm
160mm
100mm
100mm
L=400mm
48 x 8mm
Diameter=40mm
Diameter=40mm
In such a configuration, for each 15° we
measure the accuracy of the sensor. The
result is given in the following pages.
Dans une telle configuration, tous les 15°
nous mesurons la précision du capteur.
Les résultats sont donnés dans les pages
suivantes.

Related product manuals