EasyManua.ls Logo

ABB E3H 32 - Page 147

ABB E3H 32
161 pages
Print Icon
To Next Page IconTo Next Page
To Next Page IconTo Next Page
To Previous Page IconTo Previous Page
To Previous Page IconTo Previous Page
Loading...
L2234
Emax
146/158
Doc. No.
Model
1SDH000460R0002
Apparatus
Scale
Page No.
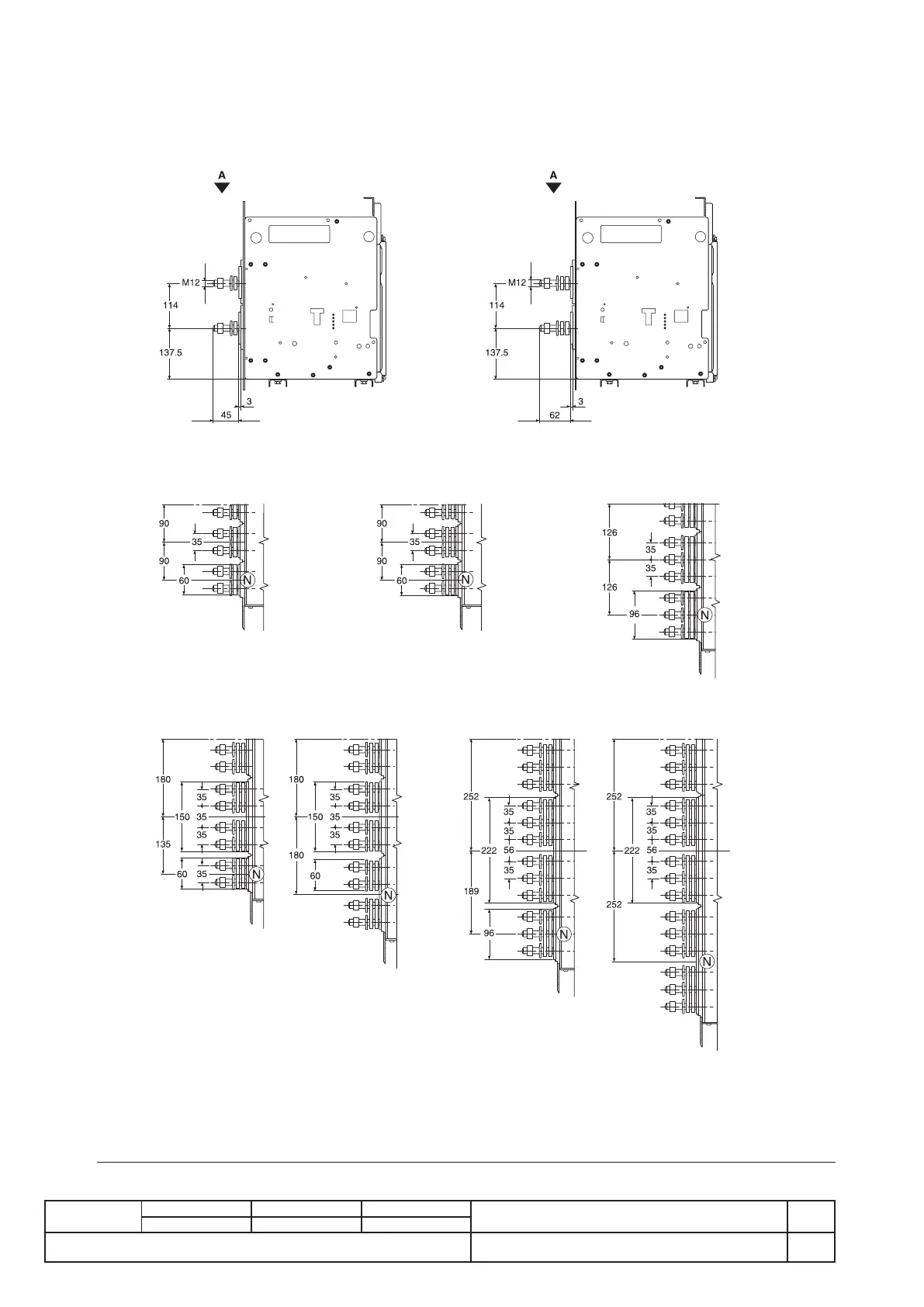
L2778
E1 E2
Fig. 45
Withdrawable circuit-breaker
Version with flat terminals
E1
View A
E2
View A
E3
View A
E4
View A
E6
View A
E4/f
View A
E6/f
View A

Table of Contents

Related product manuals