EasyManua.ls Logo

ABB E3H 32 - Page 149

ABB E3H 32
161 pages
Print Icon
To Next Page IconTo Next Page
To Next Page IconTo Next Page
To Previous Page IconTo Previous Page
To Previous Page IconTo Previous Page
Loading...
L2234
Emax
148/158
Doc. No.
Model
1SDH000460R0002
Apparatus
Scale
Page No.
L2778
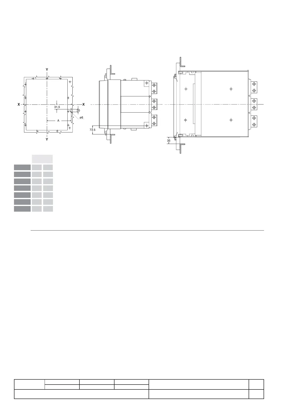
E1
180 180
E2
180 180
E3
234 234
E4
270 360
E4/f
- 360
E6
360 486
E6/f
- 486
Fixed version
Withdrawable version
Minimum distance between the circuit-breaker and the switchgear wallDoor drilling
Compartment door mechanical lock
Fig. 47
A
3 POLES 4 POLES

Table of Contents

Related product manuals