EasyManua.ls Logo

ABB VBF 36 - Page 47

ABB VBF 36
60 pages
Print Icon
To Next Page IconTo Next Page
To Next Page IconTo Next Page
To Previous Page IconTo Previous Page
To Previous Page IconTo Previous Page
Loading...
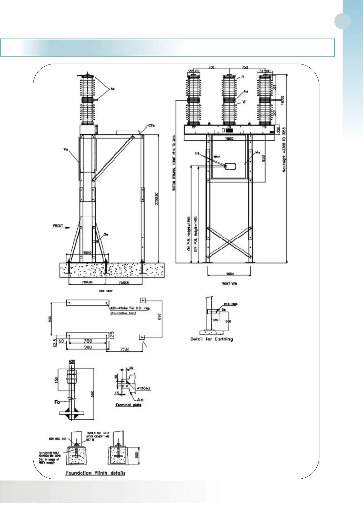
Total weight 850Kgs approx.
Creepage distance of bushing insulator 900 mm
Paint shade for control cabinet : RAL 7035
Insulator colour : Brown
Cs Position indicatior ON-OFF,Mech Counter
Vs Supporting structure (Galvanised steel structure)
Ms Control cubicle with spring drive
VCTs CT Supporting structure (Galvanised steel structure)
Ge Earthing point (Galvenising Bus.)
Vi Supporting insulator column
Fb Foundation bolt (M20)
Aa Terminals(Al.alloy)
Fl Interrupting chamber
47
Drawings
Fig. 1a. Standard General Arrangement Drawing
of VBF Breaker with breaker & CT structure
Note: Mounting holes for mounting of CT on CT Structure
are 450 X 450

Related product manuals