EasyManua.ls Logo

Abus FUMO50020 - Housing Interior

Abus FUMO50020
Print Icon
To Next Page IconTo Next Page
To Next Page IconTo Next Page
To Previous Page IconTo Previous Page
To Previous Page IconTo Previous Page
Loading...
33
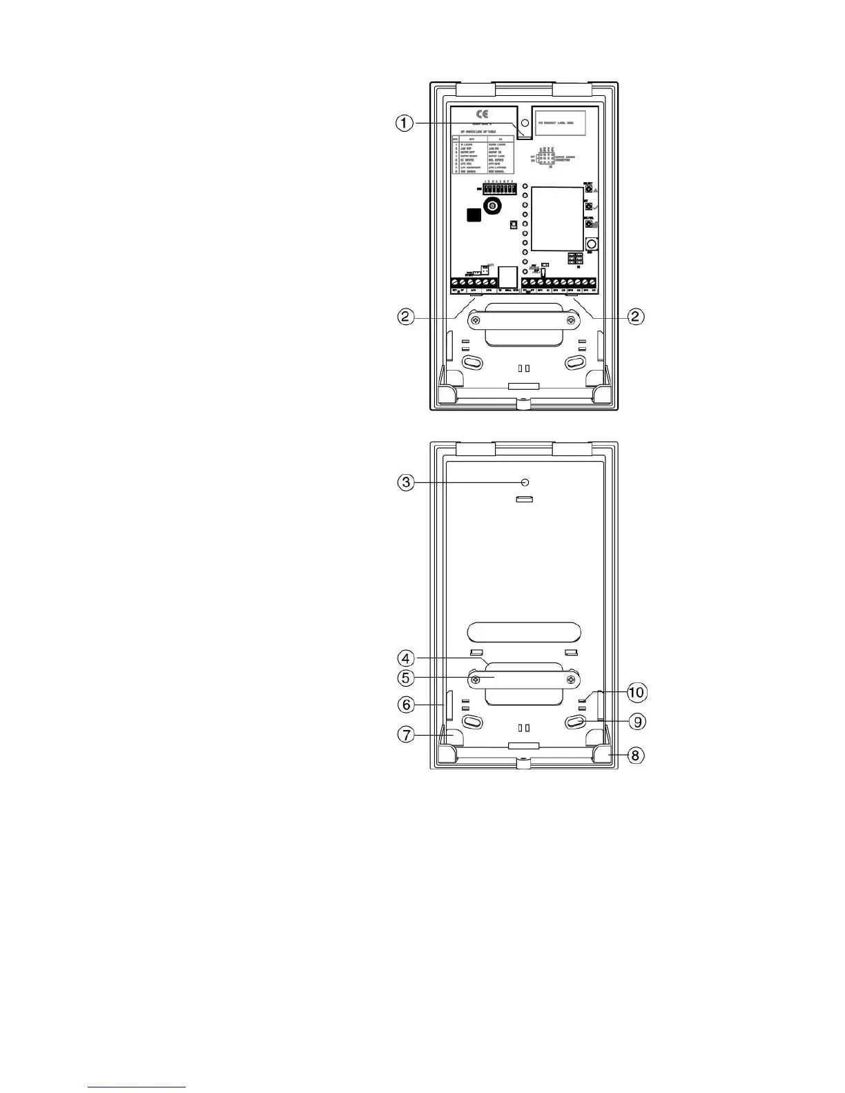
4.2 Housing interior
1. Upper PCB holder
2. Lower PCB holders
3. Upper fixing hole
4. Cable feed opening
5. Plastic cable clamp bar
(tension relief)
6. Side cable feeds
7. Corner cable feed
8. Battery holder
9. Lower fixing holes
10. Cable
clamps (tension relief)

Table of Contents