EasyManua.ls Logo

Abus FUMO50020 - Platine

Abus FUMO50020
Print Icon
To Next Page IconTo Next Page
To Next Page IconTo Next Page
To Previous Page IconTo Previous Page
To Previous Page IconTo Previous Page
Loading...
6
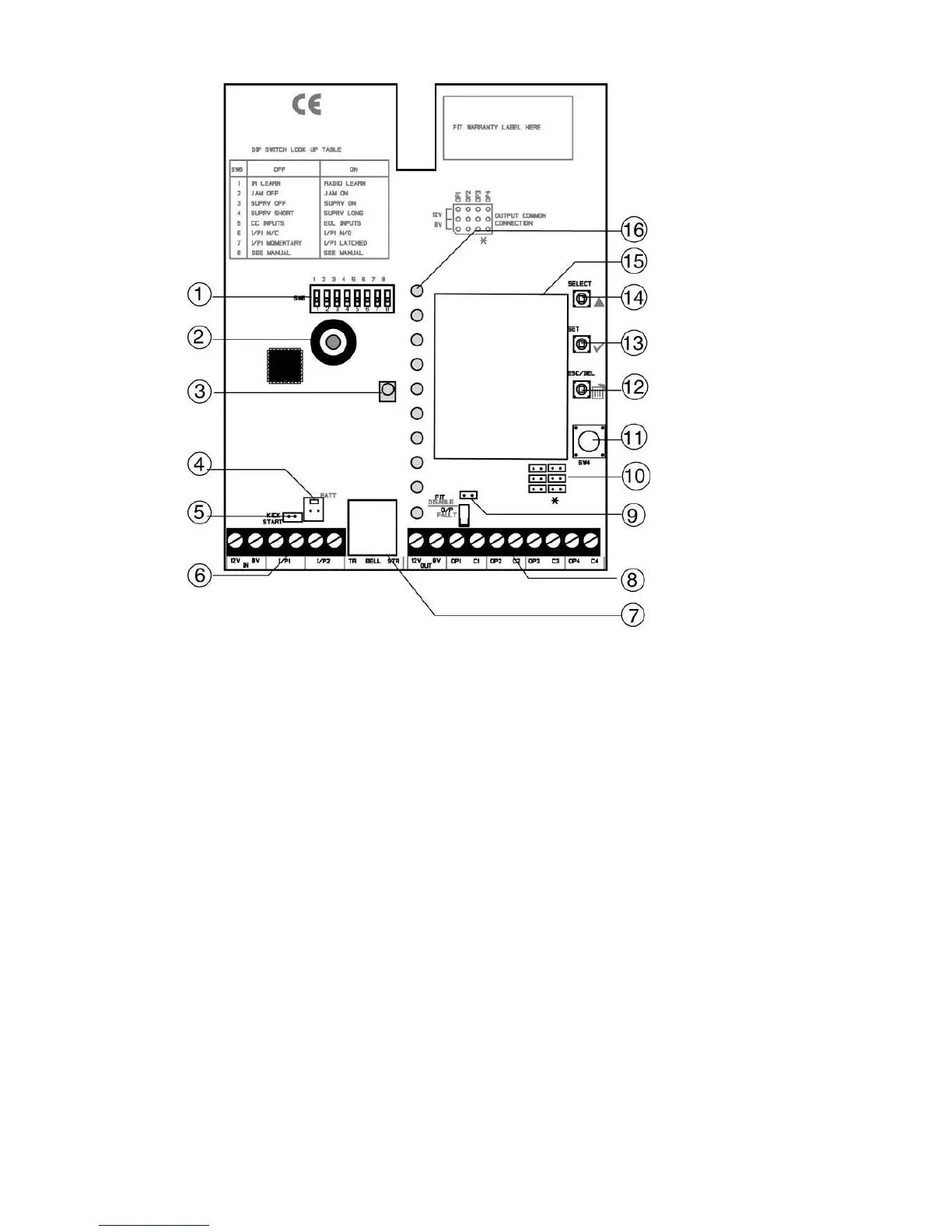
4.3 Platine
1.
DIP Schalter
2.
Piezosignalgeber
3.
IR LED Empfänger
4.
Akkuanschluß
5.
Kick Start Steckbrückenanschluß
6.
Spannungsanschluß und Zoneneingänge
7.
RJ12 Stecker für externe Sirene
8.
Spannungsausgang und Relaisausgänge
9.
Fit Disable Steckbrückenanschluss
10.
Steckbrückenanschlüsse für Ausgangskonfiguration
11.
Sabotagekontakt
12.
ESC/DEL Taste
13.
SET Taste
14.
SELECT Taste
15.
Sender/Empfängereinheit
16.
LED Anzeigen (Melderkanäle)

Table of Contents