EasyManua.ls Logo

Abus FUMO50020 - Page 99

Abus FUMO50020
Print Icon
To Next Page IconTo Next Page
To Next Page IconTo Next Page
To Previous Page IconTo Previous Page
To Previous Page IconTo Previous Page
Loading...
87
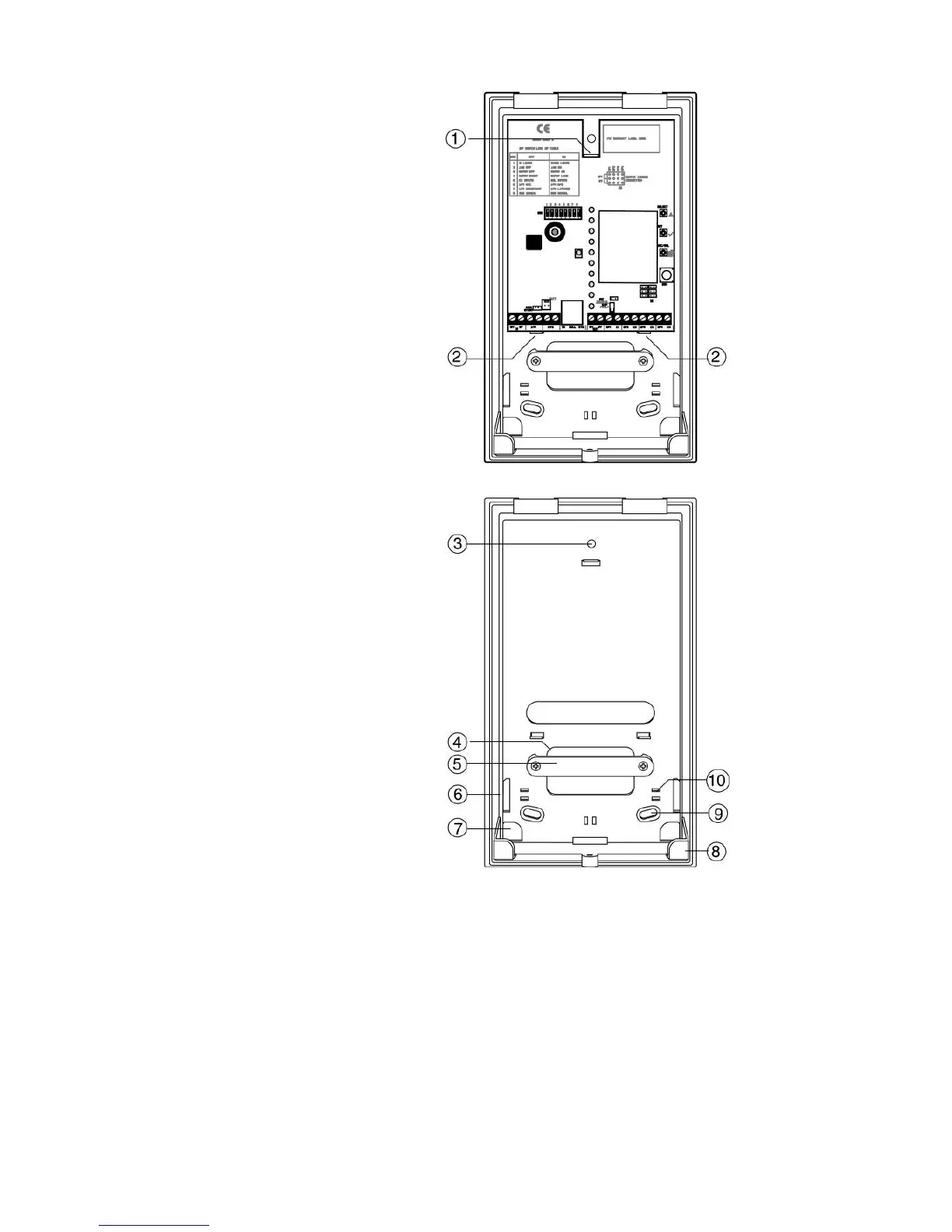
4.2 Interno dellalloggiamento
1. Supporto scheda superiore
2. Supporti scheda inferiori
3. Foro di fissaggio superiore
4. Apertura per ingresso cavi
5. Barra in plastica con funzione
di bloccacavo
6. Ingressi cavi laterali
7. Ingresso cavi angolare
8. Supporto accumulatore
9. Fori di fissaggio inferiori
10. Dispositivi
bloccacavo

Table of Contents