EasyManua.ls Logo

Acer e-mill 3VSII - Specification; Machine Specification

Acer e-mill 3VSII
203 pages
Print Icon
To Next Page IconTo Next Page
To Next Page IconTo Next Page
To Previous Page IconTo Previous Page
To Previous Page IconTo Previous Page
Loading...
- 20 -
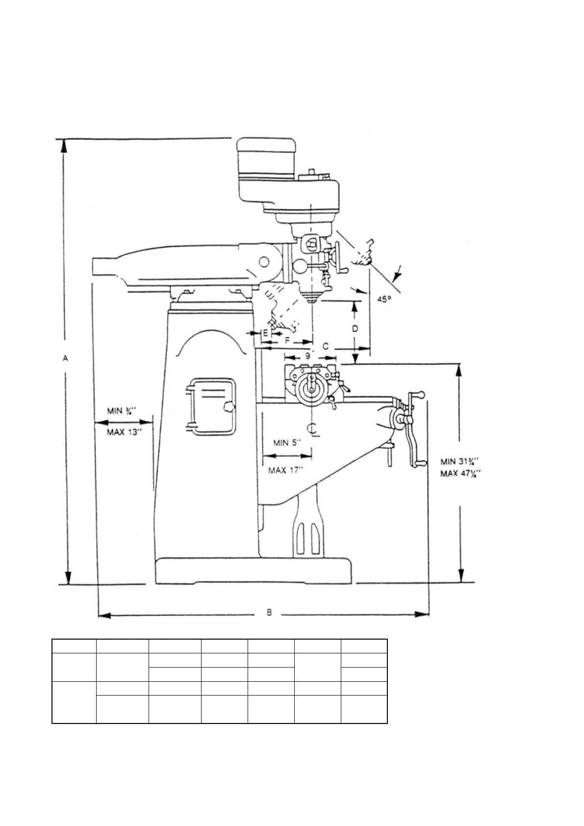
2. SPECIFICATION
2-1 Machine Specification
e-mill 3VS & e-mill 3VSII
A
B
C
D
E
F
Min.
51"
8 3/4"
2 1/2"
0
6 3/4"
1295mm
222mm
64mm
171mm
Max.
88"
63"
20 3/4"
18 1/2"
12"
18 3/4"
2235mm
1600mm
527mm
470mm
305mm
476mm
Figure 1. Principal Dimension of 3VS &3VSII

Table of Contents

Related product manuals