EasyManua.ls Logo

ACPro VQ7RE - Figures & Tables

ACPro VQ7RE
24 pages
Print Icon
To Next Page IconTo Next Page
To Next Page IconTo Next Page
To Previous Page IconTo Previous Page
To Previous Page IconTo Previous Page
Loading...
17
FIGURES & TABLES
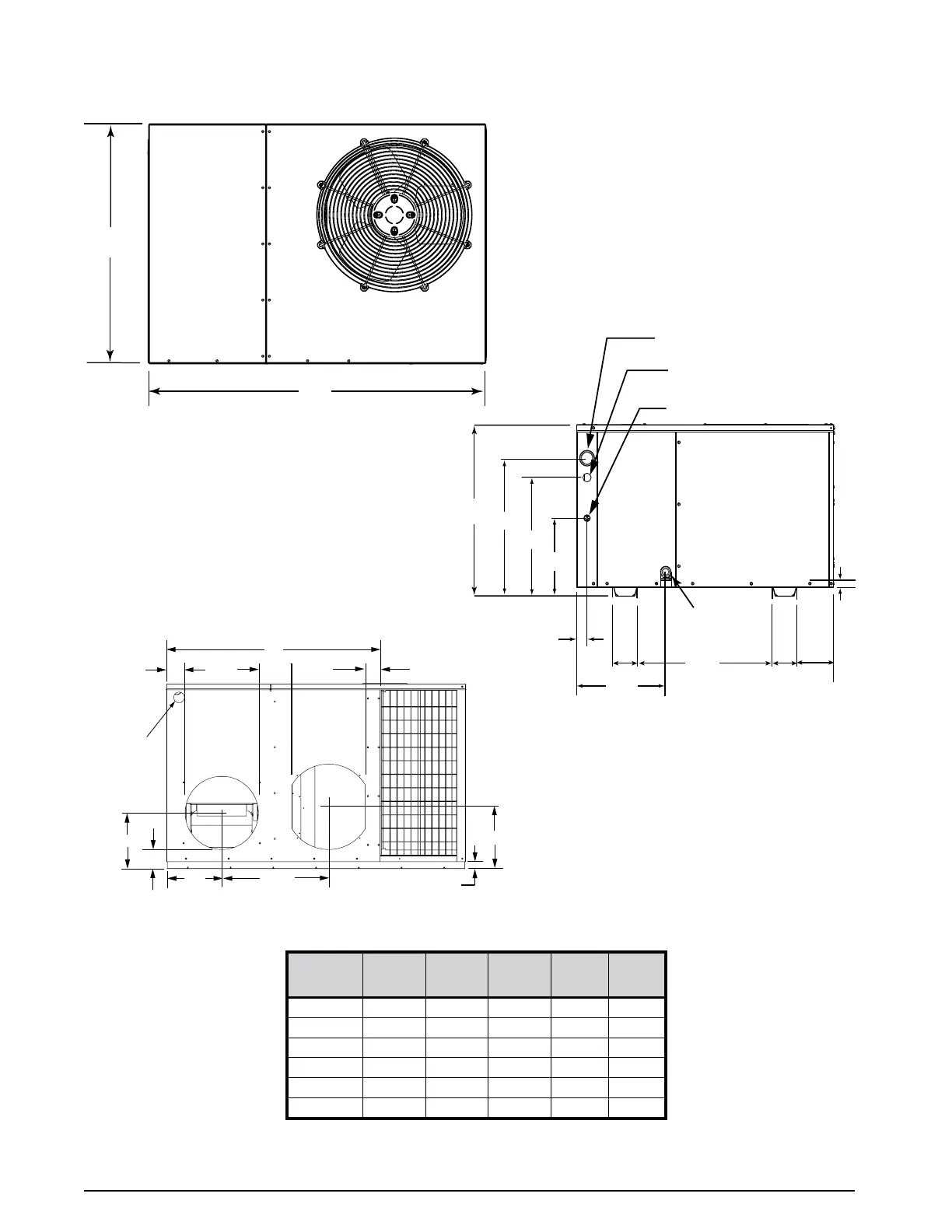
Figure 9. Unit Dimensions
A
3”
Opening for
12" Diameter
Supply Duct
9.15
17.50
9.0
Opening for
14" Diameter
Return Duct
10.15
5.5
B
1”
3.15
Alternate Power
Supply Entry
Rear
View
L
W
Top
View
18.01
1.75 Ø Electric Heater Power Supply
1.125 Ø Power Supply
0.875 Ø Low Voltage Supply
Control
Access
Panel
Blower Access Panel
H
17.86
15.36
10.10
3/4" NPT
Drain Connection
1"
12.13
1.38
3.2
3.2 5.29
Side View
MODEL
NUMBER
LENGTH
(L)
WIDTH
(W)
HEIGHT
(H)
A B
024K 49 35 30.2 35.02 2.48
030K 49 35 30.2 35.02 2.48
036K 49 35 30.2 35.02 2.48
042K 49 35 30.2 35.02 2.48
048K 63 35 38.2 35.02 2.48
060K 63 35 38.2 35.02 2.48
Table 15. Physical Data

Related product manuals