EasyManua.ls Logo

Advantage Engineering Maximum - Mechanical Schematic - 15; 20; 25; 30 Ton Models

Advantage Engineering Maximum
80 pages
Print Icon
To Next Page IconTo Next Page
To Next Page IconTo Next Page
To Previous Page IconTo Previous Page
To Previous Page IconTo Previous Page
Loading...
MK Series Portable Chiller : Air-Cooled : HE INSTRUMENT
Page: 65
ADVANTAGE ENGINEERING, INC.
525 East Stop 18 Road Greenwood, Indiana 46142
317-887-0729 Fax: 317-881-1277
Service Department Fax: 317-885-8683
Email: service@AdvantageEngineering.com
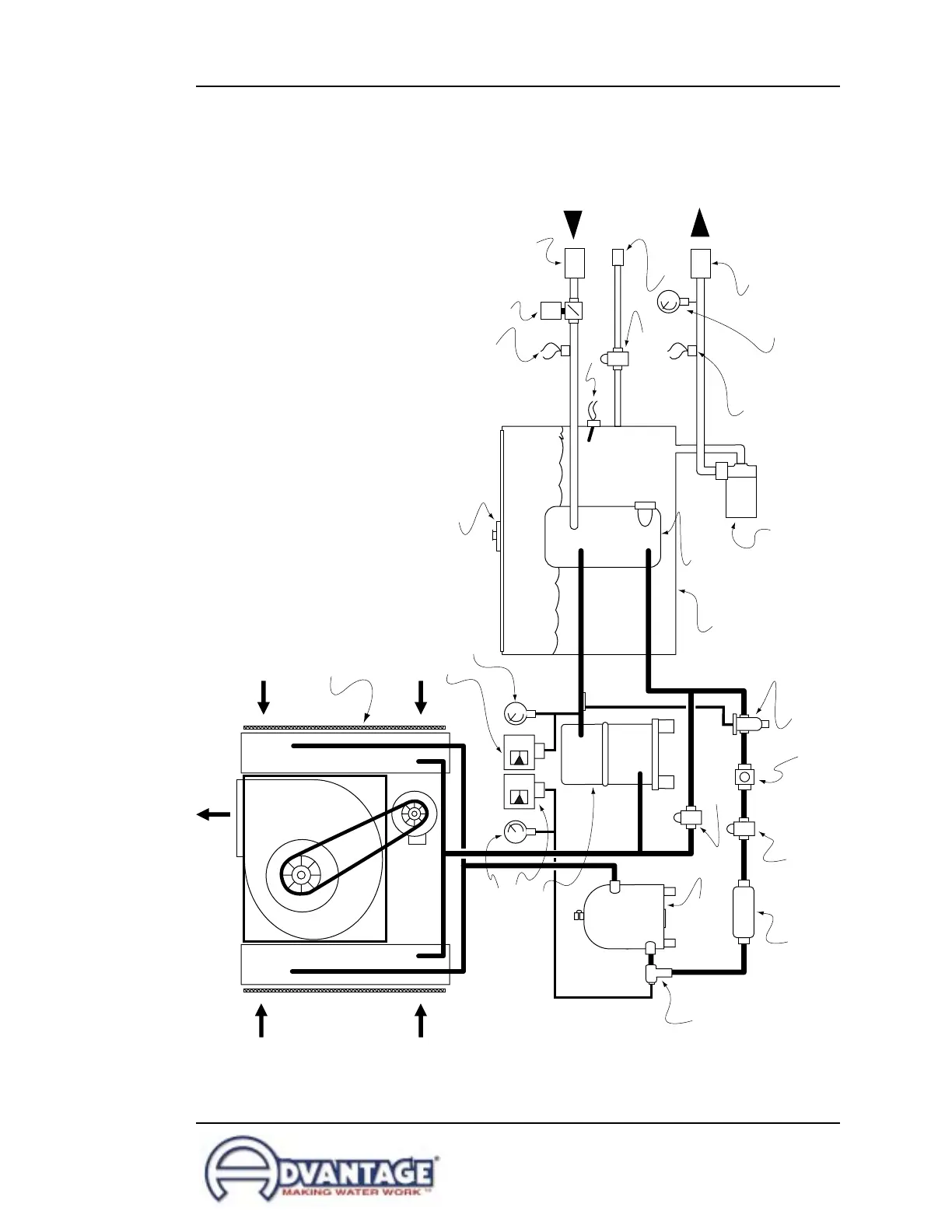
7.2 MECHANICAL SCHEMATIC - 15 / 20 / 25 / 30 TON MODELS
TO PROCESS
PRESSURE GAUGE
FROM PROCESS
TEMPERATURE SENSOR
AIR-COOLED CONDENSER w/blower
COOLANT PUMP
TO PROCESS
SENSOR PROBE
TO PROCESS
PORT CONNECTION
MAKE-UP PORT
CONNECTION
MAKE-UP
SOLENOID VALVE
LEVEL SWITCH
FROM PROCESS
PORT CONNECTION
FLOW SWITCH
RESERVOIR TANK
EXPANSION VALVE
EVAPORATOR
SERVICE LID AND FILL PORT
REFRIGERANT
SIGHT GLASS
LIQUID LINE
SOLENOID VALVE
FILTER-DRIER
SERVICE
VALVE
LIQUID LINE
RECEIVER
HOT GAS
BYPASS VALVE
COMPRESSOR
(may be Scroll Hermetic or Recip)
HEAD PRESSURE GAUGE
HIGH PRESSURE SAFETY SWITCH
SUCTION LINE
PRESSURE GAUGE
LOW PRESSURE
SAFETY SWITCH