EasyManua.ls Logo

AERMEC 1402 - Water Connections NS 3002 - 3202 °°(°;L°°00...PA...PK); Water Connections NS 3002°°(A;E°°00...PA...PK); Water Connections NS 3202°°(A;E°°00...PA...PK)

AERMEC 1402
92 pages
Print Icon
To Next Page IconTo Next Page
To Next Page IconTo Next Page
To Previous Page IconTo Previous Page
To Previous Page IconTo Previous Page
Loading...
INSPY. 1003. 4138305_03
57
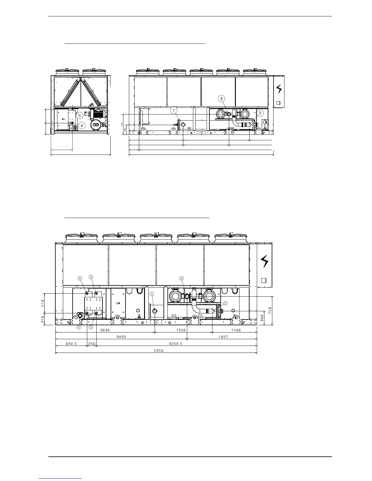
KEY
1. OUT Evaporator 4"
2. IN Evaporator 4"
3. IN Pumps 4"
4. IN Desuperheater 2"
5. OUT Desuperheater 2"
All connections are VICTAULIC supplied
together with joints to weld
KEY
1. OUT Evaporator 5"
2. IN Evaporator 5"
3. IN Pumps 5"
4. IN Desuperheater 2"
5. OUT Desuperheater 2"
All connections are VICTAULIC supplied
together with joints to weld
790
431 519
374 4976
1691 1652
893
24502007
2007
5350
2200
Evaporator water connections version «PA…PK»
Desuperheater water connections
Evaporator water connections version «00»
19.4.2. WATER CONNECTIONS
NS
2101 - 2401
°°(A/E°°00…PA…PK)
Evaporator water connections version «PA…PK»
Desuperheater water connections
Evaporator water connections version «00»
19.4.3. WATER CONNECTIONS
NS
2002 - 2202 - 2352 - 2502 - 2652 - 2802
°°(A/E°°00…PA…PK)
758 pump G/H/J/K
778 pump A/B/C/D/E/F
758 pump G/H/J/K
778 pump A/B/C/D/E/F

Table of Contents

Related product manuals