EasyManua.ls Logo

AERMEC NRA 0800 - Dimensions

AERMEC NRA 0800
86 pages
Print Icon
To Next Page IconTo Next Page
To Next Page IconTo Next Page
To Previous Page IconTo Previous Page
To Previous Page IconTo Previous Page
Loading...
29
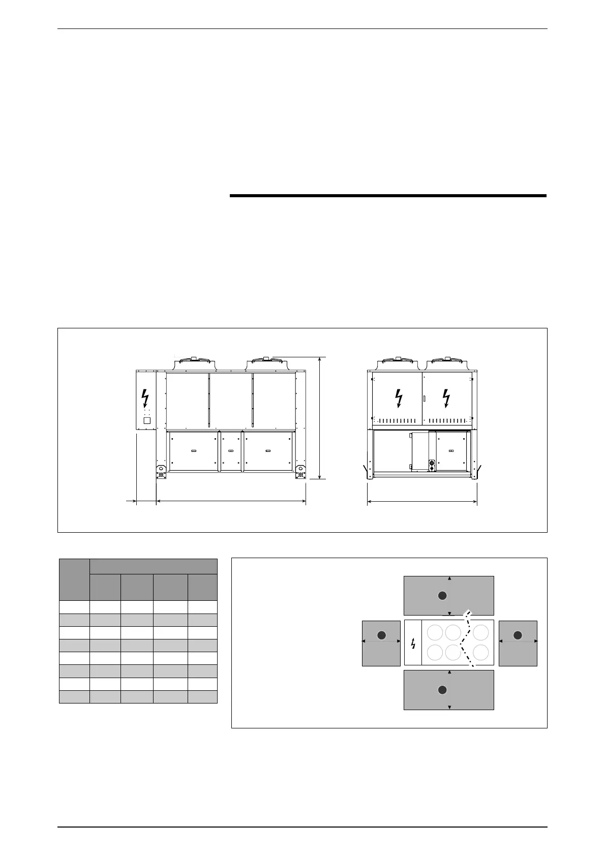
17 DIMENSIONS
As can be seen from the technical
data tables, the dimensions for the
various sizes differ only in depth (P),
while the height (H) and width (L) are
the same for all the sizes.
NOTE
- The figure below contains an
illustrative table for the effective
dimensions and the number of fans,
with reference to the table.
- For the position of the:
“PLUMBING CONNECTIONS (in the
various set-ups)”
ANTI-VIBRATION DEVICE POSITION”
Refer to the installation manual.
C
G

?
17.1 DIMENTION TABLES
NRA Dimensions in mm
LHP n°
fans
0800 2200 2450 3400 4
0900 2200 2450 3400 4
1000 2200 2450 3400 4
1250 2200 2450 4250 6
1400 2200 2450 4250 6
1500 2200 2450 4250 6
1650 2200 2450 5750 8
1800 2200 2450 5750 8
S1
S3
S2
S4
KEY
S1 800
S2 800
S3 800
S4 110 0
Height 3000
Minimum technical clearances
sight from above
outlet water temperature and,
keeping the water temperature
under control with a precise
thermometer, checking that the
unit switches off, generating
the relative alarm. After this
operation, bring the anti-freeze
set back to its original value.
.

Related product manuals