EasyManua.ls Logo

AERMEC NRK 0600 - Page 13

AERMEC NRK 0600
36 pages
Print Icon
To Next Page IconTo Next Page
To Next Page IconTo Next Page
To Previous Page IconTo Previous Page
To Previous Page IconTo Previous Page
Loading...
13INRKIY_14.02_5167555_00
NRK 0200-0700 HA-HE
EN
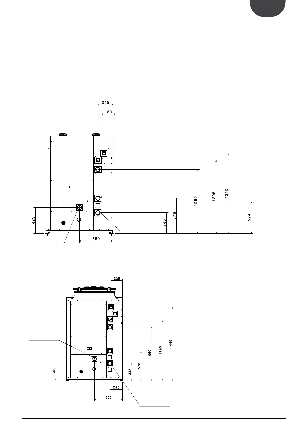
NRK_0200 ÷ 330_HE[P1÷P4]
NRK_0350 ÷ 700_HA_HE[P1÷P4]
NRK Versione [P1÷P4]
IN [P1÷P4] Ø 2”1/2
IN [P1÷P4] Ø 2”1/2
OUT [P1÷P4] Ø 2”1/2
OUT [P1÷P4] Ø 2”1/2
NRK Versione [P1÷P4]
IN [P1÷P4] Ø 2”1/2
IN [P1÷P4] Ø 2”1/2
OUT [P1÷P4] Ø 2”1/2
OUT [P1÷P4] Ø 2”1/2
NRK0300HA
NRK0300-0700HA

Related product manuals