EasyManua.ls Logo

AERMEC NRL 0700 - Page 20

AERMEC NRL 0700
56 pages
Print Icon
To Next Page IconTo Next Page
To Next Page IconTo Next Page
To Previous Page IconTo Previous Page
To Previous Page IconTo Previous Page
Loading...
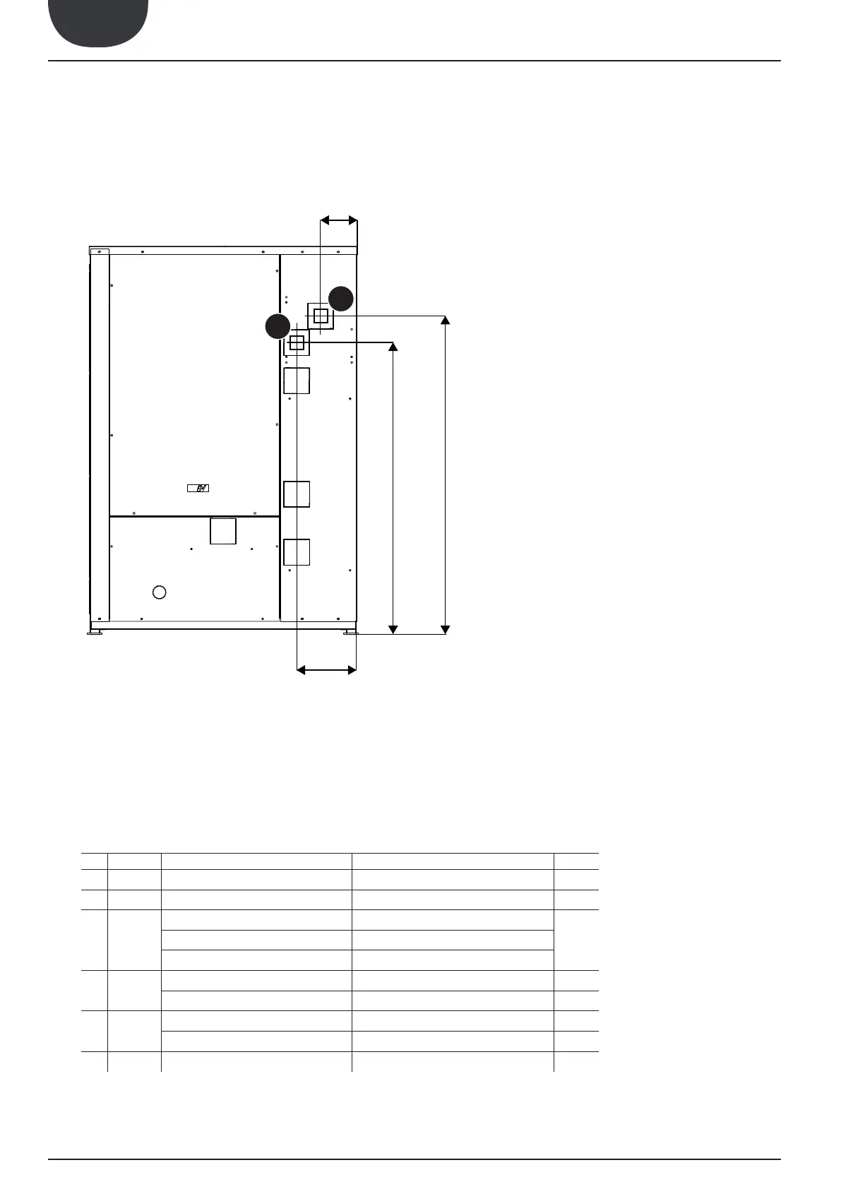
20 18.01._5280107_02
NRL 0280-0750 °-L / A-E
EN
Versione “D - T
D
E
248
150
1207
1317


  VERSION Ø
A IN Version with pump "P1-P2-P3-P4" 2"½
B IN Version standard "00" 2"½
C 
Versionistandard "00"
2"½Version with pumps "P1-P2-P3-P4"
 "01-02-03-04-05-06-07-08-09-10"
D IN
Version with desuperheater D 1"½
Version with total recovery T 2"½
E 
Version with desuperheater D 1"½
Version with total recovery T 2"½
F
IN
 "01-02-03-04-05-06-07-08-09-10" 2"½

Related product manuals