EasyManua.ls Logo

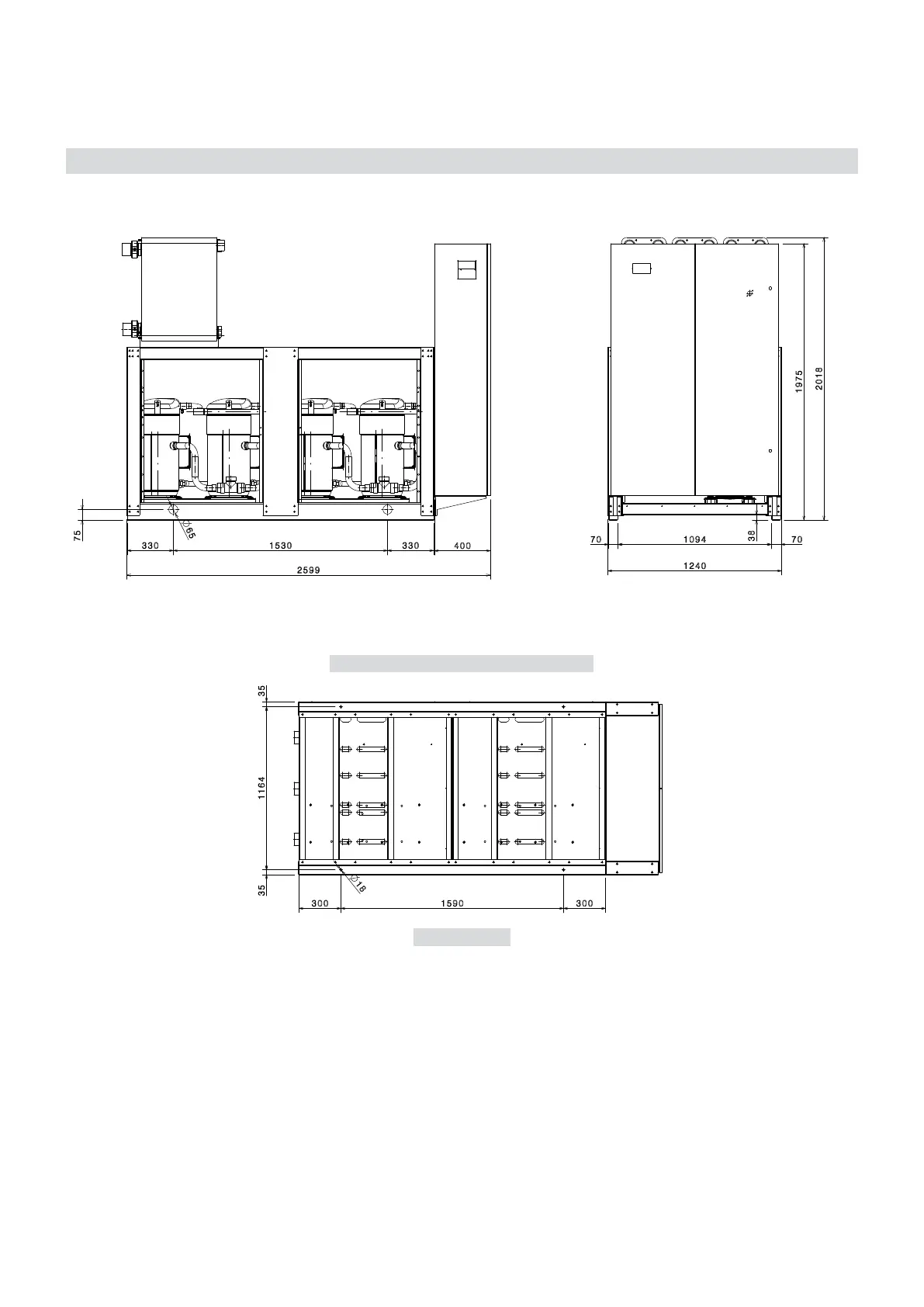
AERMEC NXP 0500 - NXP 0800-1650 Dimensions; VERSION ° Dimensions; Antivibrant Position Mounts

AERMEC NXP 0500
40 pages
Print Icon
To Next Page IconTo Next Page
To Next Page IconTo Next Page
To Previous Page IconTo Previous Page
To Previous Page IconTo Previous Page
Loading...
15
NXP 0800÷1650 (VERSION °)
bottom view
ANTIVIBRANT POSITION MOUNTS

Other manuals for AERMEC NXP 0500

Related product manuals