EasyManua.ls Logo

AERMEC URX CF - Refrigerating circuit

AERMEC URX CF
36 pages
Print Icon
To Next Page IconTo Next Page
To Next Page IconTo Next Page
To Previous Page IconTo Previous Page
To Previous Page IconTo Previous Page
Loading...
Heat recovery units with refrigeration circuit - URX_CF -
14
Selection and installation manual
GB
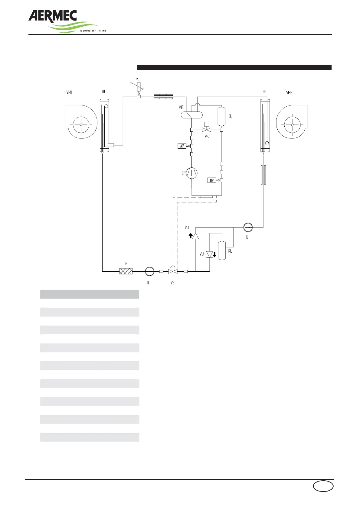
Refrigerating circuit
KEY
CP Compressor
BC Condensing coil
BE Evaporating coil
VME Summer supply fan
VMI Winter supply fan
SL Liquid separator
(*)
VU One way valve
IL Liquid indicator
F Filter
VE Thermostatic valve
RL Liquid receiver
PA High pressure probe
VIC Valvola inversione di ciclo
AP High pressure switch
BP Low pressure switch
SV Solenoid valve
(**)
(*)
Only present in 07 and 10 models.
(**)
Only present in 07 model.

Related product manuals