EasyManua.ls Logo

AERMEC VED 541 - VMF System Wiring Diagrams (Master;Slave with VMF-E2;E5)

AERMEC VED 541
80 pages
Print Icon
To Next Page IconTo Next Page
To Next Page IconTo Next Page
To Previous Page IconTo Previous Page
To Previous Page IconTo Previous Page
Loading...
53
IVEDPS 1110 - 4879040_01
+
JP1
CN11
PF2
C8
T1
C1
CN1
CN7-B CN7-A
CN10-B CN10-A
CN27
SA
N V3 V2 V1
L N
Y2
N
Y1
N
ON
1 2 3 4 5 6 7 8
DIP
1
1
CE
1
SP
1
CN8
+
CN14
SW1
CN17
1-TX-RX
2- GND
2 - B - 485
1 - A - 485
4 - V + Pan
3 - GND- 485
5 - GND - Pan
CN16
C2
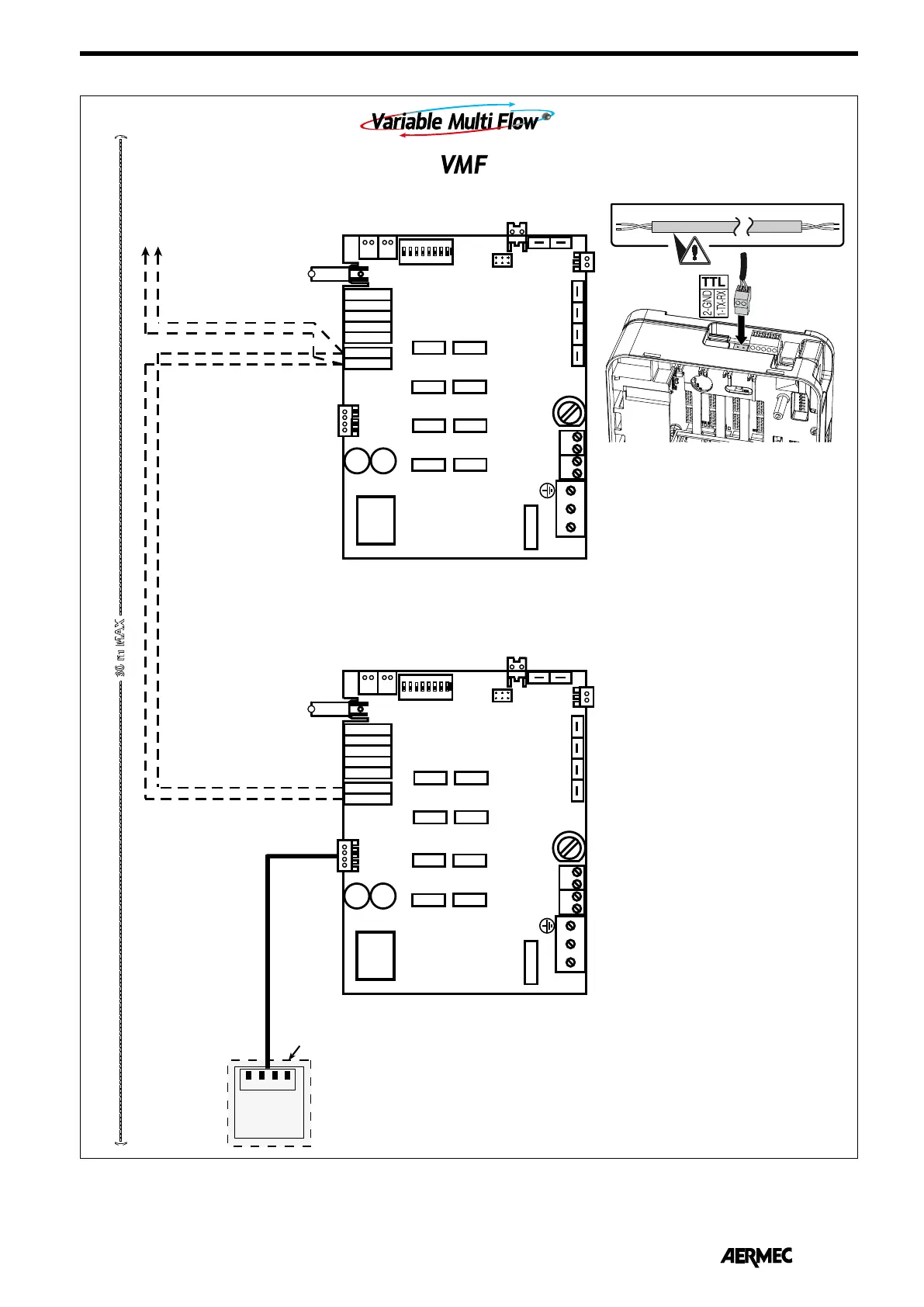
Slave 1
TTL
SLOT EXPANSION
(----------------------------------------------------------------------------------------------------------------- 30 m MAX ---
------------------------------------------------------------------------------------------------------------------)
Master
Only Master
4
3
2
1
VMF-E4
Slave 2
÷
5
VMF-E1
+
JP1
CN11
PF2
C8
T1
C1
CN1
CN7-B CN7-A
CN10-B CN10-A
CN17
CN27
1-TX-RX
2- GND
SA
N V3 V2 V1
L N
Y2
N
Y1
N
ON
1 2 3 4 5 6 7 8
DIP
1
1
CE
1
SP
1
CN8
+
CN14
SW1
2 - B - 485
1 - A - 485
4 - V + Pan
3 - GND- 485
5 - GND - Pan
CN16
C2
SLOT EXPANSION
VMF-E1
MS
SW
SW
TTL
TTL
MS
SCHEMI ELETTRICI • WIRING DIAGRAMS • SCHEMAS ELECTRIQUES • ELEKTRISCHE SCHALTPLÄNE • ESQUEMAS ELECTRICOS
TTL Seriale locale
TTL Local serial
TTL Liaison série locale
TTL Lokale serielle Schnittstelle
TTL Serial Local
Los esquemas eléctricos están sujetos a modificaciones continuas, por lo tanto es obligatorio tomar la referencia de los que se encuentran a bordo de la máquina.
All wiring diagrams are constantly updated. Please refer to the ones supplied with the unit.
Nos schémas électriques étant constamment mis à jour, il faut absolument se référer à ceux fournis à bord de nos appareils.
Die Schaltpläne werden ständig aktualisiert, deswegen muss man sich stets auf das mit dem Gerät gelieferte Schaltschema beziehen.
El cableado de las máquinas es sometido a actualizaciones constantes. Por favor, para cada unidad remitirse a los esquemas suministrados con la misma.

Other manuals for AERMEC VED 541

Related product manuals