EasyManua.ls Logo

AERMEC VED - Page 115

AERMEC VED
194 pages
Print Icon
To Next Page IconTo Next Page
To Next Page IconTo Next Page
To Previous Page IconTo Previous Page
To Previous Page IconTo Previous Page
Loading...
58
IVEDPY 2005 - 4879010_04
VMF-E1
230V 50Hz
10k
SA
MV
M
1
MAX
MED
MIN
BL
NE
MA RO
10k
+
CN9
JP1
CN11
PF2
C8
T1
C1
CN1
CN7-B CN7-A
CN10-B CN10-A
CN17
CN27
1-TX-RX
2- GND
SW
SA
N V3 V2 V1
L N
Y2
N
Y1
N
ON
1 2 3 4 5 6 7 8
DIP
1
1
CE
1
SP
1
CN8
+
CN18CN19 CN21 CN28
CN26CN25CN22CN23
CN14
SW1
2- B- 485
1- A-485
4-V+-Pan
3- GND-485
5-GND-Pan
CN16
C2
SW
SW1
SLOT EXPANSION
MODBUS
12Vdc
0Vdc
(E5)
L N
IG
TTL
(---------------------------------------------------------------------------------------------------------- 30 m MAX ------------------------------------------------------------------------------------------------------)
Slave 1
Master
TTL
Slave
÷
5
VMF-E1
230V 50Hz
10k
SA
MV
M
1
MAX
MED
MIN
BL
NE
MA RO
10k
+
CN9
JP1
CN11
PF2
C8
T1
C1
CN1
CN7-B CN7-A
CN10-B CN10-A
CN17
CN27
1-TX-RX
2- GND
SW
SA
N V3 V2 V1
L N
Y2
N
Y1
N
ON
1 2 3 4 5 6 7 8
DIP
1
1
CE
1
SP
1
CN8
+
CN18CN19 CN21 CN28
CN26CN25CN22CN23
CN14
SW1
2- B- 485
1- A-485
4-V+-Pan
3- GND-485
5-GND-Pan
CN16
C2
SW
SW1
SLOT EXPANSION
L N
IG
PE
VC
VH
MS
PE
VC
VH
MS
WMF-E0
WMF-E1
Only Master
4
3
2
1
VMF-E4
VMF-E1 (master + slave)
VMF-E5
VMF-E4
Los esquemas eléctricos están sujetos a modificaciones continuas, por lo tanto es obligatorio tomar la referencia de los que se encuentran a bordo de la máquina.
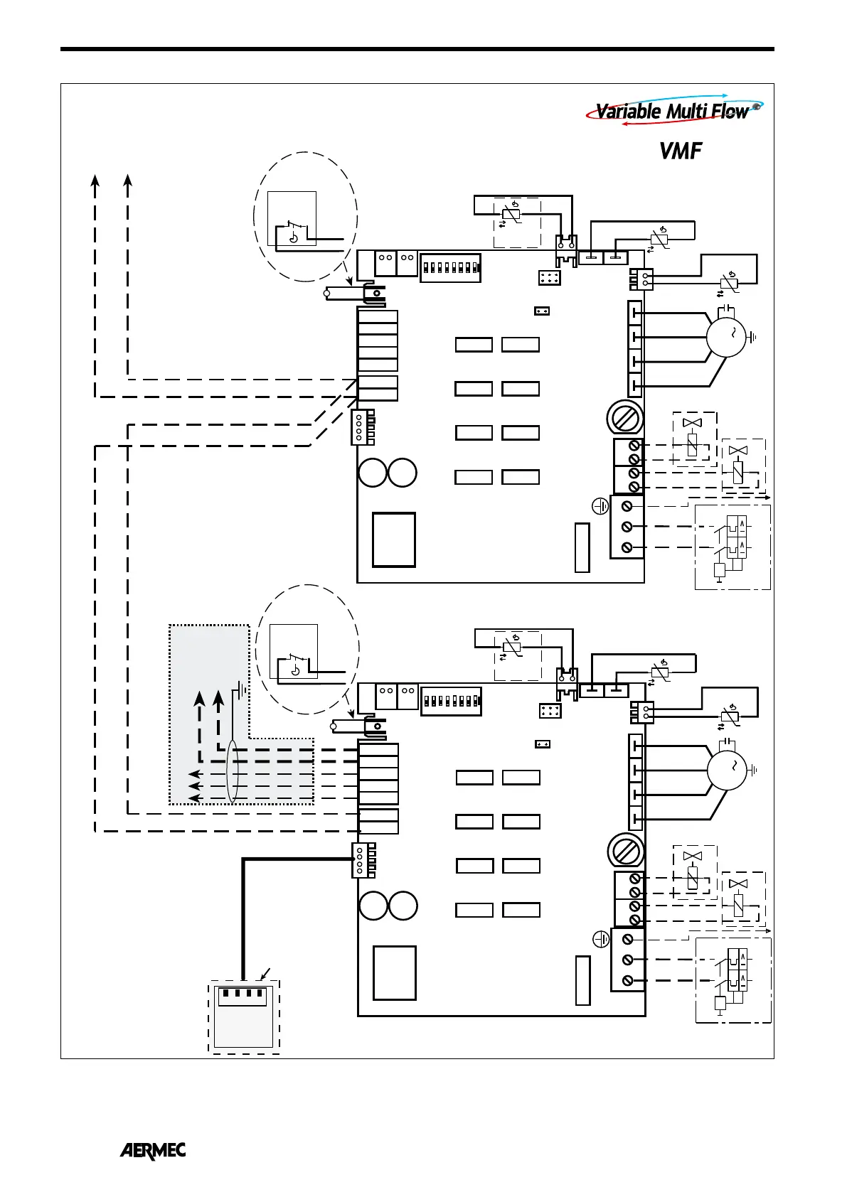
All wiring diagrams are constantly updated. Please refer to the ones supplied with the unit.
Nos schémas électriques étant constamment mis à jour, il faut absolument se référer à ceux fournis à bord de nos appareils.
Die Schaltpläne werden ständig aktualisiert, deswegen muss man sich stets auf das mit dem Gerät gelieferte Schaltschema beziehen.
El cableado de las máquinas es sometido a actualizaciones constantes. Por favor, para cada unidad remitirse a los esquemas suministrados con la misma.
SCHEMI ELETTRICI • WIRING DIAGRAMS • SCHEMAS ELECTRIQUES • ELEKTRISCHE SCHALTPLÄNE • ESQUEMAS ELECTRICOS

Related product manuals