EasyManua.ls Logo

AERMEC VED - Page 46

AERMEC VED
194 pages
Print Icon
To Next Page IconTo Next Page
To Next Page IconTo Next Page
To Previous Page IconTo Previous Page
To Previous Page IconTo Previous Page
Loading...
46
IVEDPY 1902 - 4460510_00
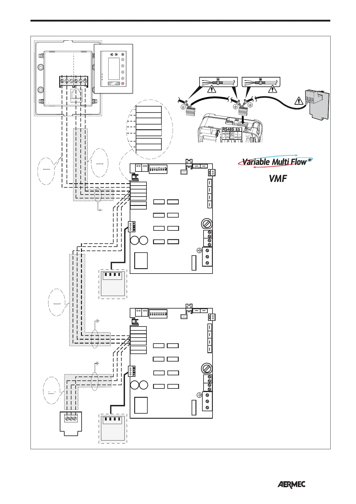
SCHEMI ELETTRICI • WIRING DIAGRAMSSCHEMAS ELECTRIQUESELEKTRISCHE SCHALTPLÄNEESQUEMAS ELECTRICOS
MODU 485A
Only Master
4
3
2
1
VMF-E2
VMF-E4
CN17
1-TX-RX
2- GND
2 - B - 485
1 - A - 485
4 - V + Pan
3 - GND- 485
5 - GND - Pan
CN16
RS485
12V
TTL
+
JP1
CN11
PF2
C8
T1
C1
CN1
CN7-B CN7-A
CN10-B CN10-A
CN27
SA
N V3 V2 V1
L N
Y2
N
Y1
N
ON
1 2 3 4 5 6 7 8
DIP
1
1
CE
1
SP
1
CN8
+
CN14
SW1
CN17
1-TX-RX
2- GND
2 - B - 485
1 - A - 485
4 - V + Pan
3 - GND- 485
5 - GND - Pan
CN16
C2
SLOT EXPANSION
Master
VMF-E1
SW
+
JP1
CN11
PF2
C8
T1
C1
CN1
CN7-B CN7-A
CN10-B CN10-A
CN27
SA
N V3 V2 V1
L N
Y2
N
Y1
N
ON
1 2 3 4 5 6 7 8
DIP
1
1
CE
1
SP
1
CN8
+
CN14
SW1
CN17
1-TX-RX
2- GND
2 - B - 485
1 - A - 485
4 - V + Pan
3 - GND- 485
5 - GND - Pan
CN16
C2
SLOT EXPANSION
VMF-E1
22AWG
VMF-E1
VMF-E1
SW
(A)
RS485
12Vdc
(B)
(GND)
CN11
(+)
(-)
(GND)
22AWG
VMF-E1
VMF-E1
22AWG
VMF-E1
VMF-E5
VMF-E5
Only Master
4
3
2
1
VMF-E2
VMF-E4
Master
VMF-E5
MAX 30m
Power Supply
CN12
(-)
(+)
(A)
(B)
(GND)
(-)
(+)
(-)
(+)
VMF-E5
12Vdc
Los esquemas eléctricos están sujetos a modificaciones continuas, por lo tanto es obligatorio tomar la referencia de los que se encuentran a bordo de la máquina.
All wiring diagrams are constantly updated. Please refer to the ones supplied with the unit.
Nos schémas électriques étant constamment mis à jour, il faut absolument se référer à ceux fournis à bord de nos appareils.
Die Schaltpläne werden ständig aktualisiert, deswegen muss man sich stets auf das mit dem Gerät gelieferte Schaltschema beziehen.
El cableado de las máquinas es sometido a actualizaciones constantes. Por favor, para cada unidad remitirse a los esquemas suministrados con la misma.
22AWG-3
VMF-MCR
MODU-485A
VMF-E01
VMF-E1
22AWG-3
22AWG-3 22AWG-3
Seriale supervisione RS485 (VMF_E1 - MODU_485A)
Supervision serial RS485 (VMF_E1 - MODU_485A)
Liaison série de supervision RS485 (VMF_E1 - MODU_485A)
Serielle Überwachungsschnittstelle E1 - MODU_485A
Serial supervisión RS485 (VMF_E1 - MODU_485A)

Related product manuals