EasyManua.ls Logo

AIREDALE CCW2/12 - Medium Chassis Dimensions (CCW); Model CCW 18 and CCW 20

Default Icon
24 pages
Print Icon
To Next Page IconTo Next Page
To Next Page IconTo Next Page
To Previous Page IconTo Previous Page
To Previous Page IconTo Previous Page
Loading...
Ceiling Cassette
The SLIMLINE PERFORMER Ceilin
g
Cassette
Ductless Mini-S
p
lit
11
Technical Manual : AIR 8-105.
5
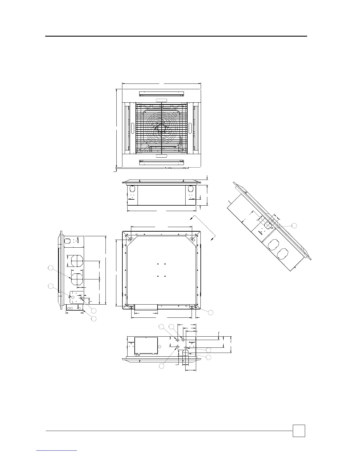
Figure 11.1 – Dimensions – Medium Chassis
Model CCW 18 and CCW 20
37
37
11/16
32 3/8
2 3/4
9 1/2
2 5/8
28 11/16
31 3/8
28 9/16
12 9/16
1 13/16
4 5/8
6
8 5/8
1 5/8
5 5/16
7 3/4
2 3/4
2 3/4
4 7/8
4 15/16
32 5/16
5 3/8
3 3/16
1 5/16
3
8 13/16
8 11/16
11 13/16
3 1/8
7 13/16
2 3/4
VIEW A-A
A
A
2
5
1
4
10
5
6
7
8
9
3
5 3/8
1. CW Coil Inlet
2. CW Coil Outlet
3. HW Coil Inlet (Optional)
4. HW Coil Outlet (Optional)
5. Fresh Air Intake (x3)
6. Branch Duct Opening (x4)
7. Pump Inspection Port
8. Condensate Drain
9. Control Panel
10. Mounting Bracket

Related product manuals