EasyManua.ls Logo

Airwell CD17 - Page 26

Airwell CD17
32 pages
Print Icon
To Next Page IconTo Next Page
To Next Page IconTo Next Page
To Previous Page IconTo Previous Page
To Previous Page IconTo Previous Page
Loading...
24
Split system gainable à pression -
Ductable pressurized split system -
Split-system für Kanalanschluß unter Druck
L1
N
6
8
9
123456 89
1
2N
3N
4
5
N
6
8
9
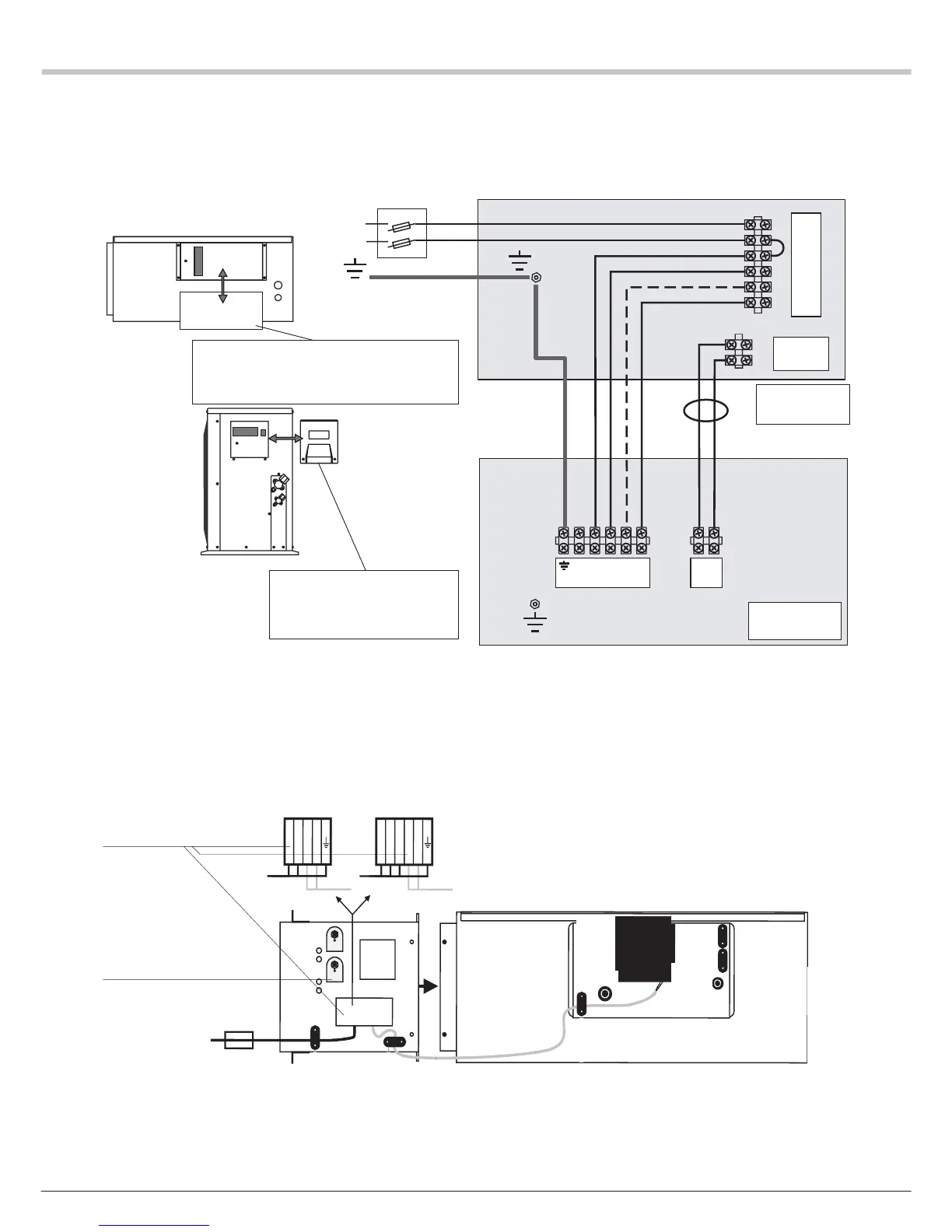
Alimentation électrique des unités.
Interconnexion
Power Supply of the Units - Interconnection
Modèles GC17-22-26/CD à climatisation seule
et pompe à chaleur.
Alimentation par l’unité intérieure.
Unité intérieure
Indoor unit
Innenteil
CD17
CD22
CD26
Accès au tableau électrique 2 vis dans la partie inférieure Entrées de câbles
en partie inférieure
Access to terminal box 2 screws at the bottom
Cable entry by the bottom
Zugang zu der Schalttafel 2 Schrauben im unteren Abschnitt. Kabeleintritt
unten.
Unité extérieure
Outdoor unit
Außenteil
GC17 / GC17RC
GC22 / GC22RC
GC26 / GC26RC
NOTES:
- The interconnection between contacts 8-9 and the outdoor
temperature probe must be made using 2 x 0.5 mm² cable
independent of the rest of the connections.
- Contacts 5/5 are interconnected only for BC systems (with
heat pump).
NOTES :
- L’interconnexion entre les bornes 8-9/Sonde extérieure doit
être effectuée avec un câble de 2x0,5mm² indépendam-
ment du reste des connexions.
- L’interconnexion entre les bornes 5/5 est effectuée unique-
ment pour les unités Réversibles.
Unité intérieure
Indoor unit
Innenteil
GC17-22-26/CD systems, air conditioner alone
and with heat pump.
Power supply via the indoor unit.
Sectionneur NON fourni
Section switch NOT supplied
Trennschalter NICHT geliefert
Stromversorgung der Geräte - Schaltung
Modelle GC17-22-26/CD Klimagerät ohne
Wärmepumpe und mit Wärmepumpe.
Versorgung über das Innenteil.
Accès au tableau électrique 2 vis dans la partie
inférieure Entrées de câbles en partie inférieure
Access to terminal box 2 screws at the bottom
Cable entry by the bottom
Zugang zu der Schalttafel 2 Schrauben im unteren
Abschnitt. Kabeleintritt unten.
HINWEISE:
- Die Verbindung der Klemmen 8-9 / Temperaturfühler außen
muß, unabhängig von den übrigen Verbindungen, mit einem
Kabel 2x0,5 mm2 erfolgen.
- Die Verbindung zwischen den Klemmen 5/5 erfolgt nur bei
den Geräten mit Wärmepumpe.
Unité extérieure
Outdoor unit
Außenteil
KIT CHAUFFAGE EN GAINE
Modeles: CD 17/22/26/35/43/50/60
x
x
x
x
FC M
FC
A
N
L1
10 11
L3
10
11L2
L1
x
x
x
x
x
x
Réarmement manuel
Bornier
1N~230V 50Hz 3N~400V 50Hz
Manual reset
Manuelles Wiedereinschalten
Terminal block
Klemmenleiste
DUCT HEATING KIT
Models: CD 17/22/26/35/43/50/60
* Separate power supply cable: not supplied
** Protective fuse mandatory : not supplied
EINBAUSATZ KANALHEIZUNG
Modelle : CD 17/22/26/35/43/50/60
* unabhängiges Anschlußkabel – nicht geliefert
** Schmelzsicherung erforderlich – nicht geliefert
*
*
**
SONDE
EXTERIEURE
* Câble d'alimentation indépendant - non fournit
** Protection par fusible obligatoire - non fournit
Voir spécifications électriques page 4
}
}
}
See electrical specifications, p. 4
Siehe elektrische Spezifikation Seite 4

Related product manuals