EasyManua.ls Logo

Allen-Bradley 22C-D6P0N103 - Page 149

Allen-Bradley 22C-D6P0N103
196 pages
Print Icon
To Next Page IconTo Next Page
To Next Page IconTo Next Page
To Previous Page IconTo Previous Page
To Previous Page IconTo Previous Page
Loading...
Rockwell Automation Publication 22C-UM001J-EN-E - January 2017 147
Accessories and Dimensions Appendix B
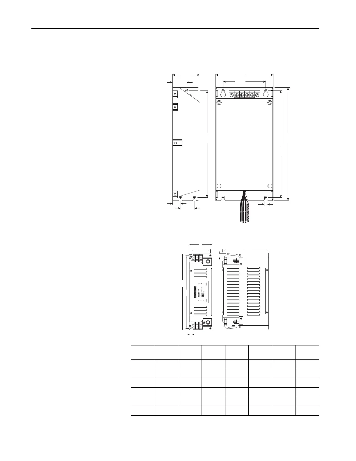
Figure 27 - EMC Line Filters
Catalog
Number
ABCDEFG
22-RFD036 74 (2.91) 272 (10.71) 161 (6.34) 60 (2.36) 258 (10.16) 7.5 (0.30) 7 (0.28)
22-RFD050 93 (3.66) 312 (12.28) 190 (7.48) 79 (3.11) 298 (11.73) 13.5 (0.53) 7 (0.28)
22-RFD070 93 (3.66) 312 (12.28) 190 (7.48) 79 (3.11) 298 (11.73) 13.5 (0.53) 7 (0.28)
22-RFD100 93 (3.66) 312 (12.28) 190 (7.48) 79 (3.11) 298 (11.73) 13.5 (0.53) 7 (0.28)
22-RFD150 126 (4.96) 312 (12.28) 224 (8.82) 112 (4.41) 298 (11.73) 19.5 (0.77) 7 (0.28)
22-RFD180 126 (4.96) 312 (12.28) 224 (8.82) 112 (4.41) 298 (11.73) 27 (1.06) 7 (0.28)
5.5 (0.22)
17
(0.67)
30
(1.18)
90
(3.54)
130
(5.12)
60
(2.36)
32
(1.26)
309
(12.17)
297
(11.69)
297
(11.69)
B
E
A
D
C
F
G
Dimensions are in millimeters and (inches)
Catalog Numbers: 22-RF018-CS, 22-RF018-CL, 22-RF026-CS, 22-RF026-CL, 22-RF034-CS
Catalog Numbers: 22-RFD036, 22-RFD050, 22-RFD070, 22-RFD100, 22-RFD150, 22-RFD180

Table of Contents

Related product manuals