EasyManua.ls Logo

Allen-Bradley 22C-D6P0N103 - Page 150

Allen-Bradley 22C-D6P0N103
196 pages
Print Icon
To Next Page IconTo Next Page
To Next Page IconTo Next Page
To Previous Page IconTo Previous Page
To Previous Page IconTo Previous Page
Loading...
148 Rockwell Automation Publication 22C-UM001J-EN-E - January 2017
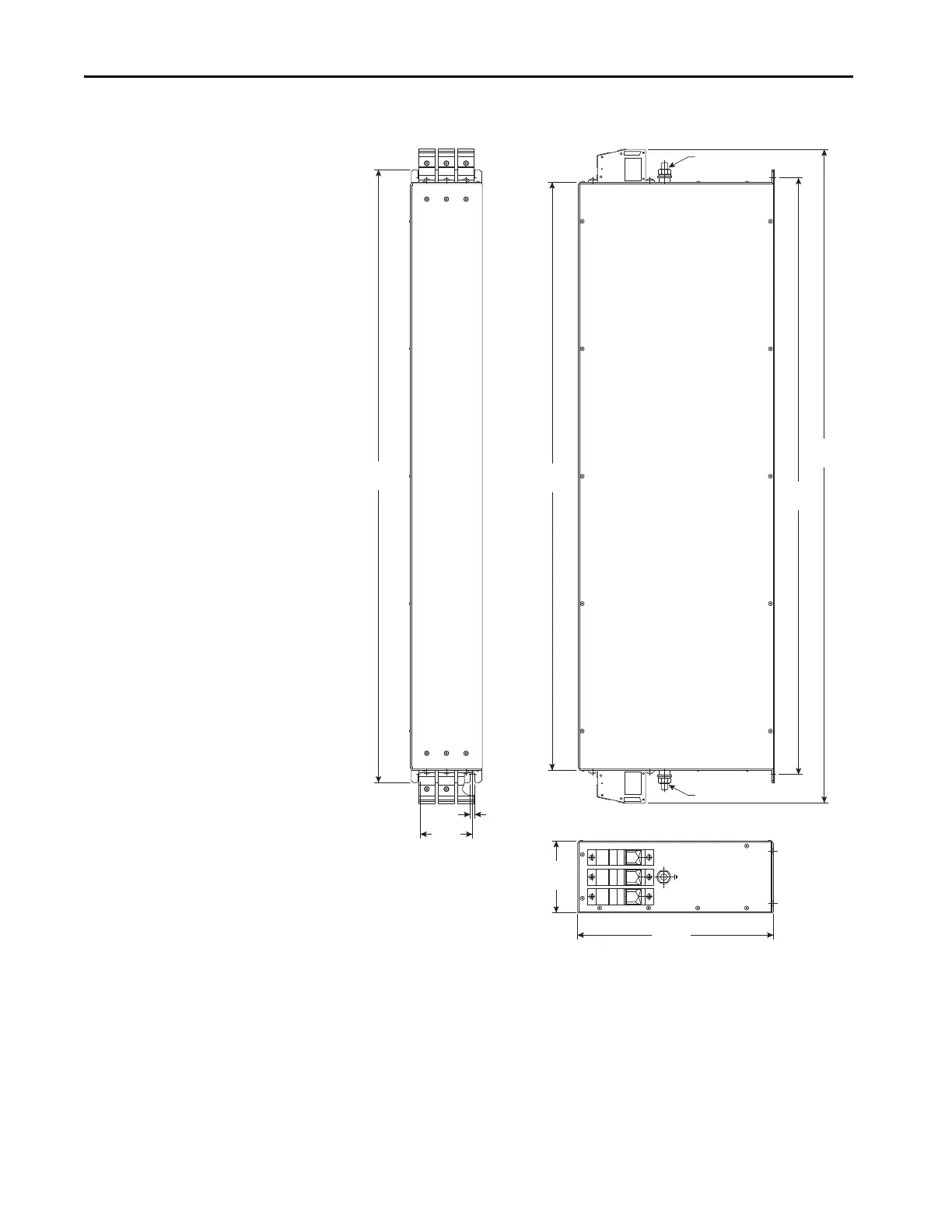
Appendix B Accessories and Dimensions
Catalog Number: 22-RFD208
938
(36.93)
900
(35.43)
913
(35.94)
1000
(39.37)
110
(4.33)
300
(11.81)
80
(3.15)
6.5
(0.26)
M10
M10

Table of Contents

Related product manuals