EasyManua.ls Logo

Allen-Bradley 22C-D6P0N103 - Page 151

Allen-Bradley 22C-D6P0N103
196 pages
Print Icon
To Next Page IconTo Next Page
To Next Page IconTo Next Page
To Previous Page IconTo Previous Page
To Previous Page IconTo Previous Page
Loading...
Rockwell Automation Publication 22C-UM001J-EN-E - January 2017 149
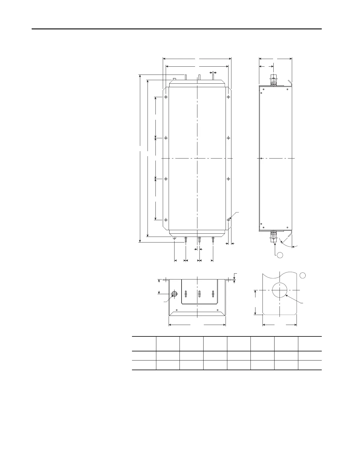
Accessories and Dimensions Appendix B
Catalog
Number
ABCDEFG
22-RFD323 300 (11.81) 735 (28.94) 145 (5.71) 275 (10.83) 689 (27.13) 64 (2.52) 180 (7.09)
22-RFD480 300 (11.81) 882 (34.72) 145 (5.71) 275 (10.83) 836 (32.91) 64 (2.52) 240 (9.45)
aa
aa
M11
Ø 10.8
(0.43)
45°
A
D
C
F
250
(11.81)
25
(0.98)
60
(2.36)
60
(2.36)
10
(0.39)
50
(1.97)
12.5
(0.49)
6
(0.24)
G
G
G
E
B
M12
ø 9
(0.35)
x 8
3
(0.12)
64
(2.52)
18
(0.71)
Catalog Numbers: 22-RFD323 and 22-RFD480

Table of Contents

Related product manuals