EasyManua.ls Logo

Allied A93UH1D - Unit Dimensions

Default Icon
60 pages
Print Icon
To Next Page IconTo Next Page
To Next Page IconTo Next Page
To Previous Page IconTo Previous Page
To Previous Page IconTo Previous Page
Loading...
507270-03Page 2 of 60 Issue 1621
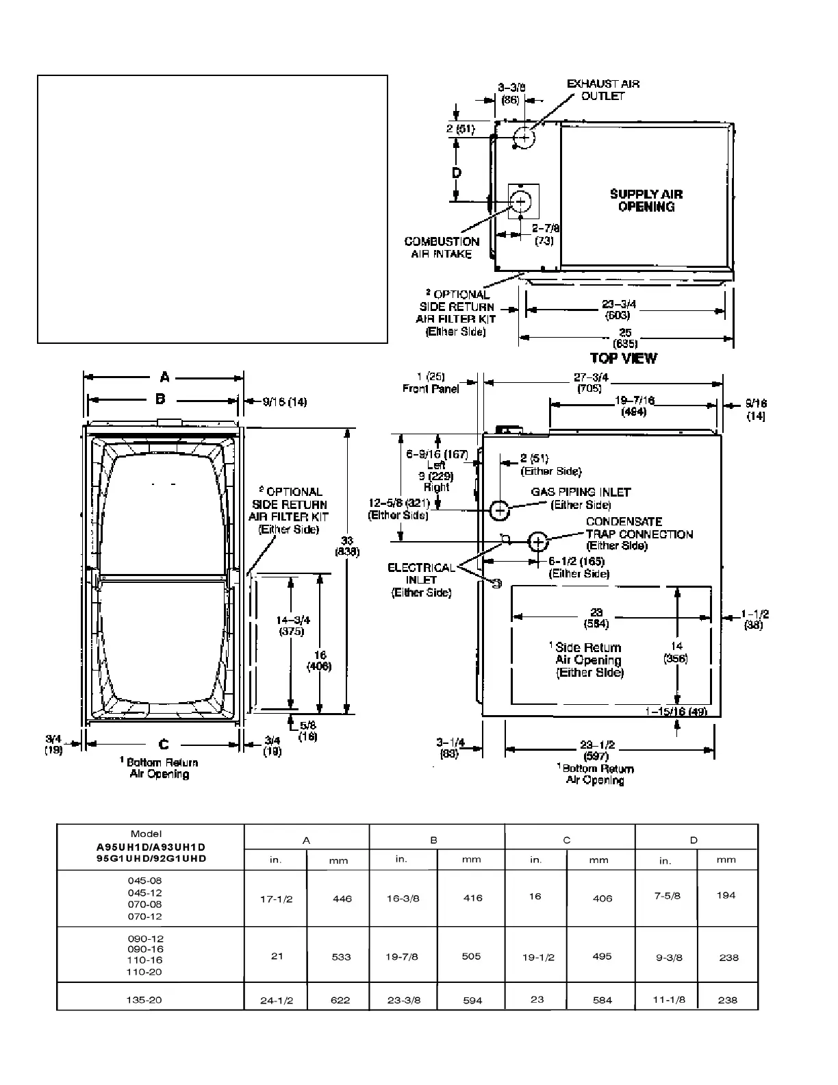
A95UH1D, A93UH1D, 95G1UHD & 92G1UHD Unit Dimensions - inches (mm)
1 NOTE - 20C and 20D (5 Ton) size units installed in upow
applications that require air volumes of 1800 cfm (850 L/s) or
greater must have one of the following:
1. Single side return air with transition, to accommodate
20 x 25 x 1 in. (508 x 635 x 25 mm) cleanable air lter.
(Required to maintain proper air velocity.)
2. Single side return air with optional “RAB” Return Air
Base.
3. Bottom return air.
4. Return air from both sides.
5. Bottom and one side return air.
See “Blower Performance Tables” for additional information.
2 Optional External Side Return Air Filter kit is not for use with
optional Return Air Base.
* Consider sizing requirements for optional IAQ equipment
before cutting side return opening.
FRONT VIEW SIDE VIEW

Related product manuals