EasyManua.ls Logo

Allmatic B2VR PROX - Page 13

Default Icon
Print Icon
To Next Page IconTo Next Page
To Next Page IconTo Next Page
To Previous Page IconTo Previous Page
To Previous Page IconTo Previous Page
Loading...
ITA ENG FRA ESP DEU POR
1 / 4
6-1622294 rev 2 04/05/2015
B2VR PROX
Cuadro de mando para 2 motores con entrada anemómetro
1. Introducción
El cuadro de mando de la serie B2VR PROX es un aparato apto para accionar el accionamiento y el control de toldos de sol y persianas de manera
simple y completa, proyectada para satisfacer cualquier exigencia. Este producto puede accionar 2 motores de 230 Vac monofásico con 500W max
de potencia en manera independiente. El cuadro de mando B2VR PROX, si esta equipado con un receptor radio, usar el sistema de decodificación de
código variable, seguro e intuitivo en la instalación. En la memoria extraíble es posible memorizar en modo permanente hasta 1000 canales (8000
con memoria opcional) de la serie Birol® y CLARUS. Tiene una entrada para un sensor viento (serie WIN Allmatic), que permite cerrar el automatismo
en el caso se presente una situación de peligro debida a una excesiva velocidad del viento. Además, son presentes 4 entradas separadas para los
pulsadores de apertura y cierre de los dos motores accionables en manera independiente también en modalidad programada (función reloj). En el
caso no sea instalado el receptor radio, para accionar el automatismo es necesaria la presencia de los pulsadores cableados.
PRECAUCION: NO INSTALAR EL CUADRO DE MANDO SIN ANTES HABER LEIDO LAS INSTRUCCIONES !!!
LA INSTALACION DEBE SER REALIZADA SOLO POR PERSONAL CALIFICADO
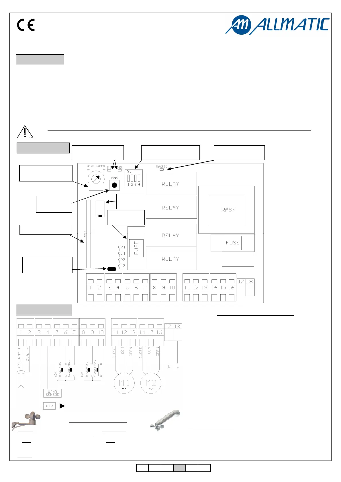
2. Configuración
Dip-switch para la
selección de las funciones
Led de diagnóstico de
la interferencia radio
Puentecillo expansión
del sensor viento
Regulación umbral de
velocidad alarma viento
Módulo radio receptor
Led de aprendizaje /
alarmas
Pulsador de
aprendizaje
3. Conexiones
Instalación y recomendaciones
Conectar el motor 1 a los bornes 11,12,13 y el motor 2 a los
bornes 14,15,16 respetando el esquema y la polaridad del
motor (abre = desenrollar toldo, cierra = enrollar toldo).
Conectar los pulsadores abre y cierra del motor 1 a los
bornes 5, 6, 7 y los pulsadores abre y cierra dl motor 2 a los
bornes 8, 9, 10 respetando el esquema y tratando de
separar lo más posible estos cables de los de tensión
de red y del motor.
Conectar el reloj para el motor 1 a los bornes 5 y 6 y para el
motor 2 a los bornes 8 y 9 (ver parágrafo 7).
Conectar el sensor a viento a los bornes 4 y 5. También en
este caso, evitar de hacer correr los cables cerca de la
tensión de red y del motor, en modo de aislar de
interferencias externas. Para un esquema de conexión de
un anemómetro con más centralitas, referir al parágrafo 9.
Conectar los cables de la tensión de red 230Vac a los
bornes 17 y 18.
Controles preliminares
Llevar el toldo a la mitad del recorrido, llevar el trimmer umbral
viento al mínimo y accionar manualmente el anemómetro,
asegurarse que el automatismo cierre cuando es detectada una
condición de peligro. Si el automatismo abre controlar el cableado
del motor.
Fusible entradas
F 50 mA
Fusible línea
F 6.3 A
Memoria
mandos
Conexiones Sensor viento
WIN S:
Conectar los cables a los bornes 4
y 5 de la regleta di bornes B2VR.
KAIROS S:
Conectar los cables a los bornes 4
y 5 de la regleta di bornes B2VR.
NOTA: los cables de conexión no tienen polaridad.
NOTA: la central es compatible también con el sensor WIN EX .

Related product manuals