EasyManua.ls Logo

Alto-Shaam 500-S Series

Alto-Shaam 500-S Series
28 pages
To Next Page IconTo Next Page
To Next Page IconTo Next Page
To Previous Page IconTo Previous Page
To Previous Page IconTo Previous Page
Loading...
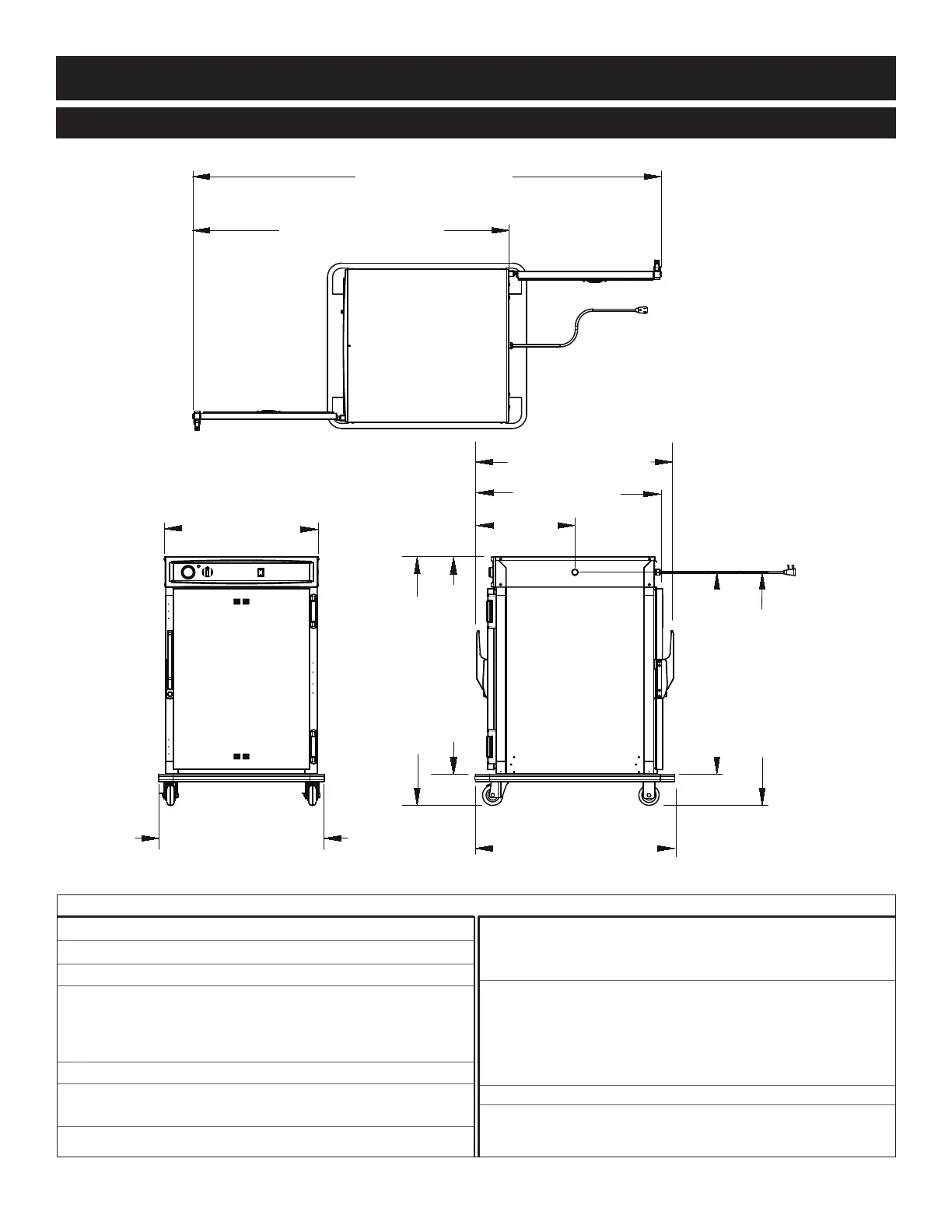
E X T E R I O R D I M E N S I O N S - 1 2 0 0 - S S E R I E S
I N S T A L L A T I O N
#823 INSTALLATION/ OPERATION/ SERVICE MA NUAL 8.
16-9/16”
78-3/4” (2000mm)
53-3/16” (1351mm)
33-1/8” (841mm)
(420mm)
pass thru
33-1/2” (850mm)
with optional bumper
with optional bumper
27-13/16” (706mm)
electrical
26” (660mm)
electrical
reach-in
36-9/16” (929mm)
41-7/8” (1063mm)
with 3-1/2” casters
33-15/16” (862mm)
39-1/4” (996mm)
31” (786mm)
43-1/4” (1098mm) with optional 5” casters
43-1/2” (1104mm) with optional 6” legs
O P T I O N S & A C C E S S O R I E S
Bumper, Full Perimeter 5004861
Casters, 5" (127mm) Stem, 2 RIGID, 2 SWIVEL W/BRAKE 5004862
Door Lock with Key LK-22567
HACCP Network Options (
ELECTRONIC CONTROL ONLY)
REFER TO SPECIFICATION #9015 FOR APPLICABLE PART NUMBERS
HACCP Documentation
HACCP with Kitchen Management
Legs, 6" (152mm) Flanged (SET OF FOUR) 5004863
Pan Grid, chrome plated, wire PN-2115
Sheet pan insert 18" x 26" (457mm x 660mm x 25mm)
Probe, Internal Temperature (ELECTRONIC CONTROL) AVAILABLE
Universal Angle Configuration
Pan Slides, Chrome Plated SR-24447
Pan Slides, Stainless Steel SR-24762
Side Rack Configuration
Side Rack, Chrome Plated SR-22445
Side Rack, Stainless Steel SR-23739
Shelf, Stainless Steel SH-23738
Shelf, Chrome Plated SH-2733
Stacking Hardware 5004864
Water Reservoir Pan 1775
Water Reservoir Pan Cover 1774

Other manuals for Alto-Shaam 500-S Series

Related product manuals