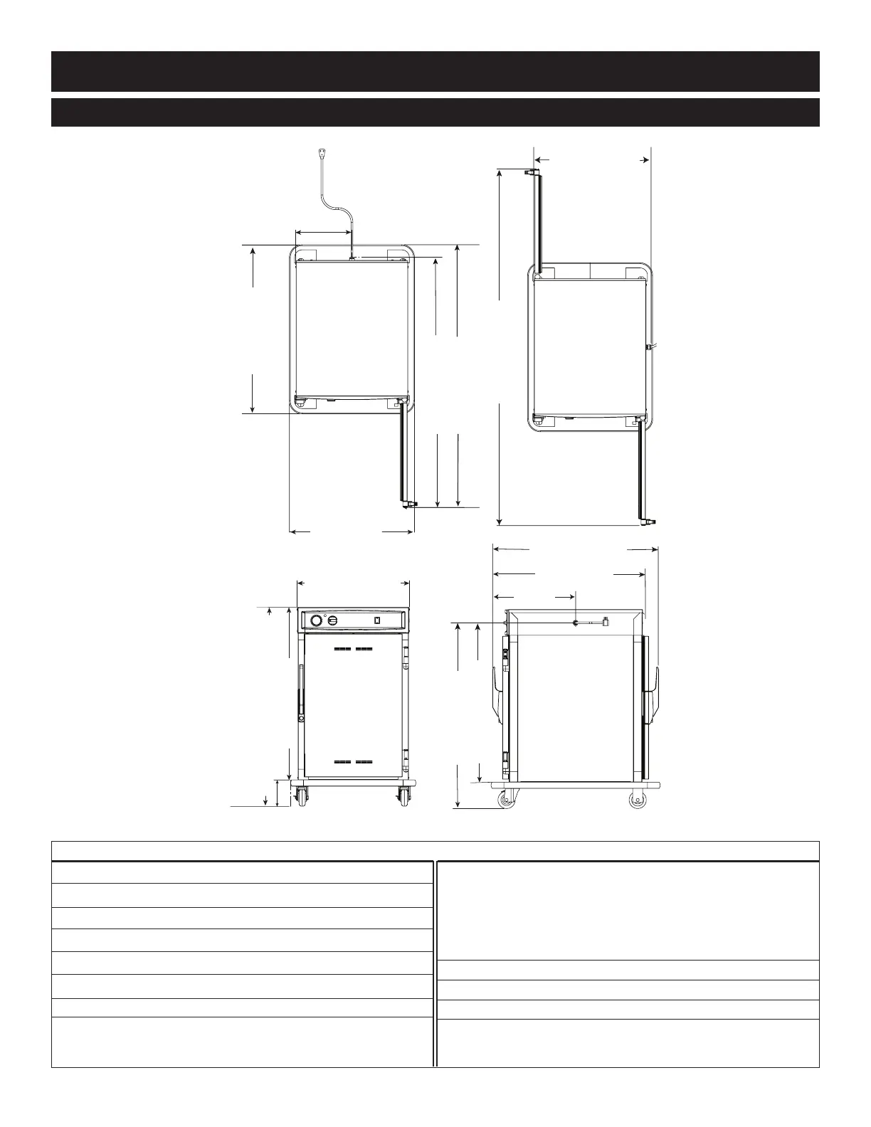
E X T E R I O R D I M E N S I O N S - 1 0 0 0 - S S E R I E S
I N S T A L L A T I O N
#823 • INSTALLATION/ OPERATION/ SERVICE MA NUAL • 7.
11-5/16"
(287mm)
33-7/8" (860mm)
with optional bumper
25" (636mm)
with optional bumper
50-1/8" (1273mm)
52-5/8" (1337mm)
71-7/16" (1814mm)
23-1/2" (597mm)
22-9/16" (573mm)
39-7/8" (1013mm)
34-1/2" (878mm)
with 3-1/2" casters
5-5/16" (135mm)
with standard 3-1/2" casters
33-1/4" (844mm)
16-5/8"
(422mm)
37-3/16" (945mm)
31-15/16" (810mm)
31" (788mm)
Electrical
Reach-in
Electrical, Pass-thru
39-15/16" (1015mm)
with optional 5" casters
39-15/16" (1015mm)
with optional 6" legs
Pass-thru option
O P T I O N S & A C C E S S O R I E S
Bumper, FULL PERIMETER 5005103
Casters, 5" (127mm) Stem, 2 RIGID, 2 SWIVEL W/BRAKE 5004862
Door Lock with Key LK-22567
Drip Pan, without Drain 11906
Drip Pan, extra Deep 1115
Legs, 6" (152mm) Flanged (SET OF FOUR) 5004863
Pan Grid, Wire, - 18" x 26" PAN INSERT PN-2115
Probe, Internal Temperature
(ELECTRONIC CONTROL) AVAILABLE
HACCP Network Options (ELECTRONIC CONTROL ONLY)
REFER TO SPECIFICATION #9015 FOR APPLICABLE PART
NUMBERS
➥ HACCP Documentation
➥ HACCP with Kitchen Management
Shelf, Stainless Steel, REACH-IN SH-2325
Shelf, Stainless Steel, PASS-THROUGH SH-2346
Stacking Hardware 5004864
Water Reservoir Pan 1775
Water Reservoir Pan Cover 1774