EasyManua.ls Logo

Alto-Shaam 500-S Series

Alto-Shaam 500-S Series
28 pages
To Next Page IconTo Next Page
To Next Page IconTo Next Page
To Previous Page IconTo Previous Page
To Previous Page IconTo Previous Page
Loading...
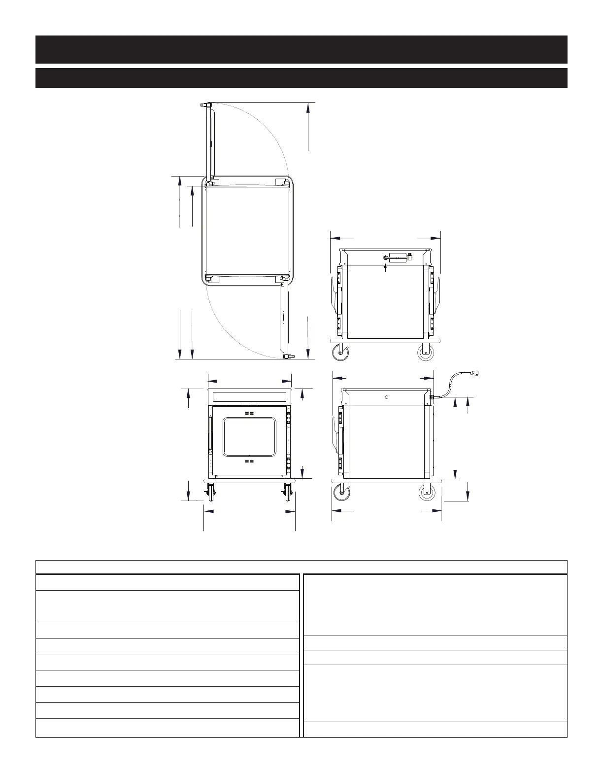
E X T E R I O R D I M E N S I O N S - 7 5 0 - S S E R I E S
I N S T A L L A T I O N
#823 INSTALLATION/ OPERATION/ SERVICE MA NUAL 6.
28-1/4" (716mm)
with optional bumper
33-3/16" (843mm)
with 3-1/2" casters
25-3/4" (653mm)
33-7/8" (860mm)
with optional bumper
30-15/16" (785mm)
25-1/8" (638mm)
30-7/16" (772mm)
53-9/16" (1360mm)
55-1/2" (1408mm)
77-1/2" (1967mm) - Pass-Through Option
33-7/8" (860mm)
Electrical
Connection
Pass-Through
Option
33-1/4" (845mm) with optional 6" legs
33-1/4" (845mm) with optional 5" casters
27-7/8" (708mm)
O P T I O N S & A C C E S S O R I E S
Bumper for cabinet, FULL PERIMETER 5004861
Carving Holder, Prime Rib HL-2635
Carving Holder, Steamship (Cafeteria) Round 4459
Casters, 5" (127mm) Stem, 2 RIGID, 2 SWIVEL W/BRAKE 5004862
Cutting Board, 18" x 24" x 1/2" (457 x 610 x 13mm) BA-2054
Door Lock with Key LK-22567
Drip Pan, with Drain 14831
Drip Tray - External 5004975
Legs, 6" (152mm), Flanged (SET OF FOUR) 5004863
Pan Grid, Wire - 18" x 26"
PAN INSERT PN-2115
HACCP Network Options (ELECTRONIC CONTROL ONLY)
REFER TO SPECIFICATION #9015 FOR APPLICABLE PART
NUMBERS
HACCP Documentation
HACCP with Kitchen Management
Probe, Internal Temperature (ELECTRONIC CONTROL) AVAILABLE
Security Panel 5004750
Shelf, Chrome Wire,
REACH-IN SH-2105
Shelf, Chrome Wire,
PASS-THROUGH SH-2327
Shelf, Stainless Steel, Flat Wire,
REACH-IN SH-2324
Shelf, Stainless Steel, Rib Rack SH-2743
Side Rack (230V
MODELS ONLY) SR-27426

Other manuals for Alto-Shaam 500-S Series

Related product manuals