EasyManua.ls Logo

Altronix M Series - Page 16

Altronix M Series
16 pages
Print Icon
To Previous Page IconTo Previous Page
To Previous Page IconTo Previous Page
Loading...
- 16 - M Series
Altronix is not responsible for any typographical errors.
140 58th Street, Brooklyn, New York 11220 USA | phone: 718-567-8181 | fax: 718-567-9056
website: www.altronix.com | e-mail: info@altronix.com | Lifetime Warranty | Made in U.S.A.
II M Series C07S
MEMBER
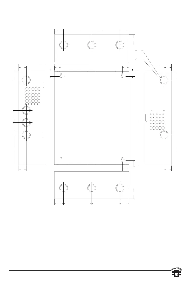
Enclosure Dimensions (H x W x D) for:
AL300ULMX • AL400ULMX • AL600ULMX • AL1012ULM • AL1024ULM
15.5” x 12” x 4.5” (393.7mm x 304.8mm x 114.3mm)
1.5”
(38.1mm)
1.5”
(38.1mm)
1.5”
(38.1mm)
5.0”
(127.0mm)
5.0”
(127.0mm)
1.5”
(38.1mm)
2.0”
(50.8mm)
2.0”
(50.8mm)
1.75”
(44.45mm)
1.75”
(44.45mm)
4.5”
(114.3mm)
1.25”
(31.75mm)
4.5”
(114.3mm)
1.25”
(31.75mm)
1.25”
(31.75mm)
1.25”
(31.75mm)
1.1”
(27.94mm)
1.1”
(27.94mm)
0.79”
(20.06mm)
1.1”
(27.94mm)
0.91”
(23.114mm)
0.91”
(23.114mm)
1.375”
(34.925mm)
1.125”
(28.575mm)
15.5”
(393.7mm)
4.615”
(117.22mm)
12.23”
(310.64mm)
4.615”
(117.22mm)
1.5”
(38.1mm)
1.5”
(38.1mm)
4.615”
(117.22mm)
4.615”
(117.22mm)

Related product manuals