EasyManua.ls Logo

Amana PGD**C - Page 73

Amana PGD**C
85 pages
Print Icon
To Next Page IconTo Next Page
To Next Page IconTo Next Page
To Previous Page IconTo Previous Page
To Previous Page IconTo Previous Page
Loading...
73
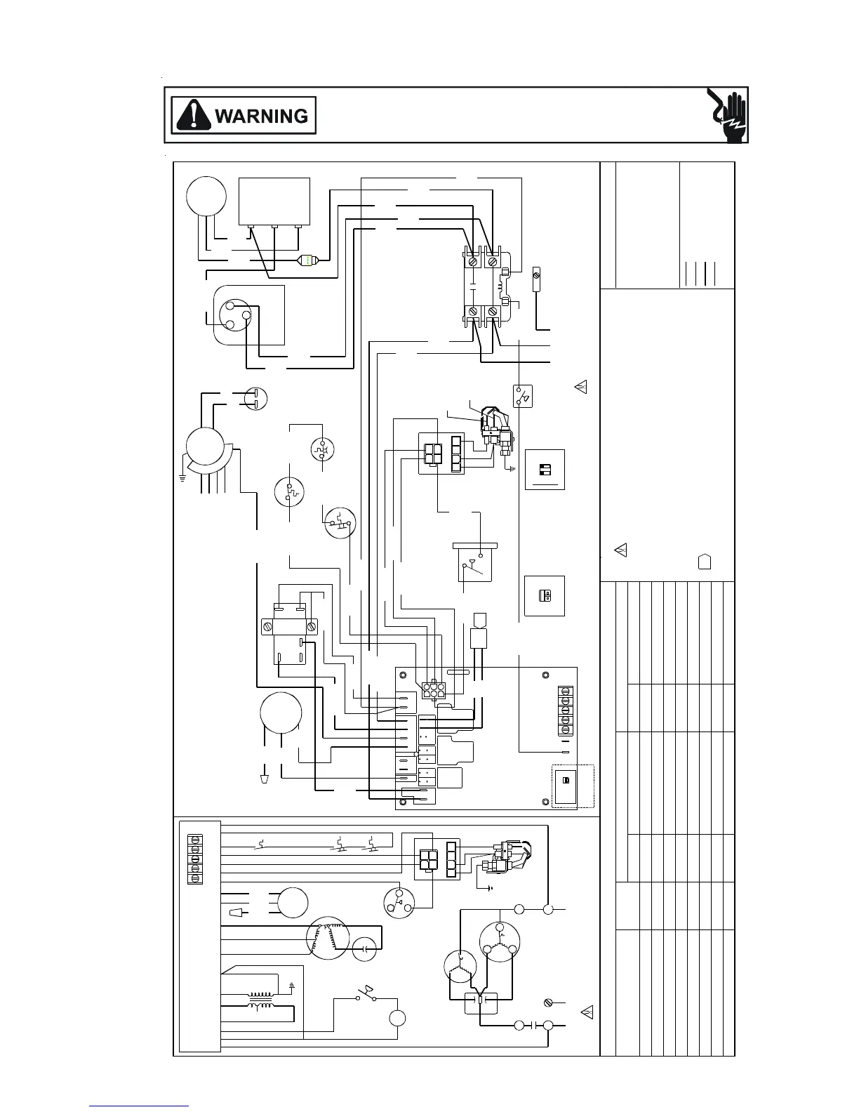
WIRING DIAGRAMS
HIGH VOLTAGE!
DISCONNECT ALL POWER BEFORE SERVICING OR INSTALLING THIS
UNIT. MULTIPLE POWER SOURCES MAY BE PRESENT. FAILURE TO
DO SO MAY CAUSE PROPERTY DAMAGE, PERSONAL INJURY OR DEATH.
YL YELLOW
OR ORANGE
VT VIOLET
GN GREEN
BK BLACK
BR BROWN
WH WHITE
BU BLUE
GY GRAY
RD RED
COLOR CODE
LOW VOLTAGE
LOW VOLTAGE FIELD
HI VOLTAGE
HI VOLTAGE FIELD
11175001 REV. 0
READ BEFORE OPERATING OR SERVICING THIS UNIT.
WARNING: DISCONNECT POWER BEFORE SERVICING.
IMPORTANT:
6
X
F
M
R
HOT
S
1
COMB
BLOWER
ACB
R
S
C
FAN
COM
HERM
CAP
T1 T2
COMP
OD
FAN
CC
WARNING:DISCONNECT POWER BEFORE SERVICING.
CONTROL BOARD
(TERMINAL ORDER REARRANGED)
GND
COMPRESSOR
WIRING
C
A
P
A
C
I
T
O
R
O.D.
FAN
MOTOR
COM
208
230
LOAD
LINE
TRANSFORMER
CS
R
FAN
HERM
COM
GND
CONTACTOR (CC)
T2
T1
L2
L1
FIELD CONNECTION
208/230 VAC
WARNING:DISCONNECT POWER BEFORE
SERVICING.
L2L1 GND
AUX LIMIT
CONTROL
PRIMARY ROLLOUT
LIMIT (RL)
LIMIT
AIR
CIRCULATION
BLOWER
(ACB)
CAPACITOR
(CAP)
NC
NO
COM
COMBUSTION
BLOWER
(CB)
AIR PRESSURE
SWITCH (PS)
1234
X
F
M
R
C
S
E
C
X
N
1
C
O
O
L
H
E
A
T
D
I
N
2
35
L1 L2
241
GAS VALVE
N0
NC
C
PS
RL
N
4
L
I
M
I
T
A
U
X
L
I
M
I
T
2 X
4 F
M
V R
C
O
M
2
0
8
2
3
0
Y
C
A
P
208/230 VAC 1ø
C
SEE DETAIL
1 OR 2
CC
FOR PROPER OPERATION ON 208 VOLT THE
FOLLOWING CHANGES MUST BE MADE:
208 VOLT INSTALLATION
MOVE BK17 WIRES FROM TRANSFORMER
230 TERMINAL TO 208 TERMINAL.
UNPLUG RED COMBUSTION BLOWER LEAD FROM
CONTROL BOARD TERMINAL (DI) AND
ATTACH BLACK BLOWER LEAD TO TERMINAL.
TAPE UNUSED RED LEAD.
1. AMANA SPECIFIED REPLACEMENT PARTS MUST BE
USED WHEN SERVICING.
2. IF ANY ORIGINAL WIRE IS REPLACED, 105° C WIRE
MUST BE USED.USE COPPER CONDUCTORS ONLY.
3. EQUIPPED FOR 230 VOLT OR 208 VOLT.
4. HEAT ON/OFF FAN DELAY FACTORY
SETTINGS: 30 SECONDS ON AND 120 SECONDS OFF.
5. UNUSED BLOWER MOTOR LEADS MUST BE PLACED ON
UNUSED MOTOR LEADS TERMINALS OF CONTROL OR TAPED.
6. IF HEATING AND COOLING BLOWER SPEEDS ARE NOT THE
SAME DISCARD JUMPER BEFORE CONNECTING BLOWER LEADS.
THER MOSTAT
60
12 0
9
0
150
H
E
A
T
C
O
O
L
C
O
N
T
CIR BLOWER
EAC
N
HUM
N
EACHUM
S
1
S
2
S
3
DI
CX
SECXFMRNEUTRAL
UNUSED
MOT OR
LEAD S
1234
Y
HEAT FAN
DELAY
OFF
CGYWR
C
1
2
3
4
5
6
YL-27
RD-24
BK-26
BU-23
6
60
120
9
0
150
DETAIL 1
HEATCRAFT
ADJUSTABLE FAN SETTING
(FACTORY SETTING AS SHOWN)
42
31
OFF
1
DELAY
2
DETAIL 2
HONEYWELL
ADJUSTABLE FAN SETTING
(FACTORY SETTING AS SHOWN)
1234
GAS VALVE
42
31
PILOT BURNER
GROUND (THRU PILOT)
IGNITOR
FLAME SENSOR
FACTORY WIRED MOTOR CONNECTIONS
PGD24C0452D
MOTOR
SPEEDS
* HEATING BLOWER SPEED
SPEED
PGD24C0702D
PGD30C0702D
PGD24C0902D
PGD36C0902D
PGD30C0902D
PGD36C0702D
4
4
4
4
4
4
4
** COOLING BLOWER SPEED
SPEEDMOTOR TO "HEAT"
LOW YL-27
MED HI BU-23
HI BK-26
HI BK-26
HI BK-26
HI BK-26
HI BK-26
MOTOR TO "COOL"
LOW YL-27
LOW YL-27
LOW YL-27
MED LOW RD-24
MED LOW RD-24
MED HI BU-23
MED HI BU-23
RD
10
VT
20
RD
15
VT
16
GY
25
YL-12
VT
20
RD
10
BK
27
BR
11
VT
16
BR
BR
RD-29
BU-34
GY-30
YL
11
VT-18
GY-25
OR-22
OR-19OR-49
BR-21
GY-25
WH
WH
VT-14
RD
(230V)
VT
(COM)
BK
(208V)
RD-1
YL/BK
BK
17
VT-47
VT-37
RD-13
VT
37
RD
13
MODELS
2
3
0
C
O
M
2
0
8
N
3
PGD42C0902D 2 HI BK-26 HI BK-26
7. COOLING ON/OFF FAN DELAY SETTING: 6 SECONDS ON
AND 30 SECONDS OFF.
THER MOSTAT
CGYWR
3
4
5
6
2
1
L
P
S
LOW PRESSURE
SWITCH (LPS)
YL/BK
PGD24, 30, 36, 42

Table of Contents

Other manuals for Amana PGD**C

Related product manuals