EasyManua.ls Logo

AOpen Digital Engine DE45 - Page 19

AOpen Digital Engine DE45
48 pages
Print Icon
To Next Page IconTo Next Page
To Next Page IconTo Next Page
To Previous Page IconTo Previous Page
To Previous Page IconTo Previous Page
Loading...
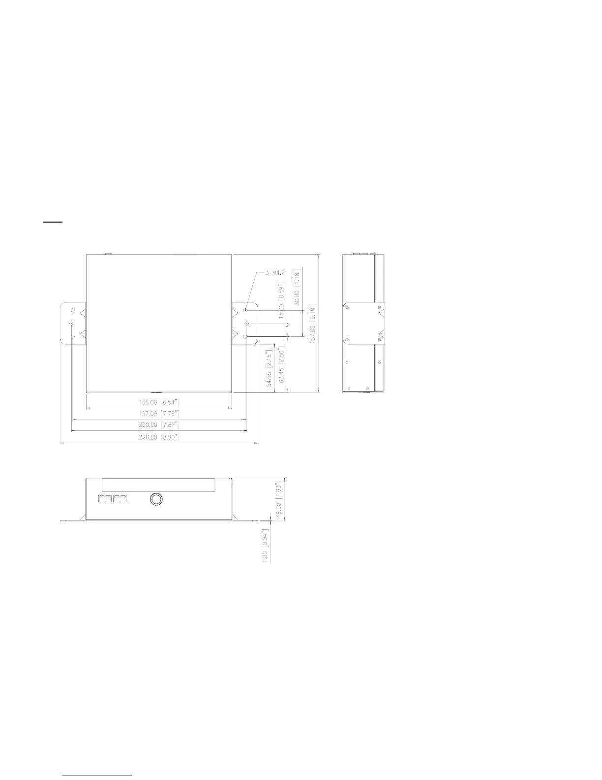
B-3 Dimension of L type Holder. (unit: mm)
9

Related product manuals