EasyManua.ls Logo

APE 100 - II-4. Quick Disconnect Couplings

APE 100
21 pages
Print Icon
To Next Page IconTo Next Page
To Next Page IconTo Next Page
To Previous Page IconTo Previous Page
To Previous Page IconTo Previous Page
Loading...
7032 SOUTH 196th - KENT, WA 98032 - (253) 872-0141 / FAX (253) 872-8710
OPERATION / MAINTENANCE MANUAL
II. MAJOR COMPONENT DEFINITION (Continued...)
II-4. Quick Disconnect Couplings
The APE Quick Disconnect Couplings are high pressure hydraulic couplings designed for rugged
applications. Service in many such applications has proven the design compatible to extreme
pressures, structural and system induced shock loads. The construction of the coupling assembly
promotes ease of use and maintenance.
Design Features:
- Excellent flow characteristics for continuous duty applications.
- High strength design endures high surge and shock conditions.
- Flat crested stub-ACME threads and all steel construction withstand storage and rig-up
damage.
- Structurally compatible with weight of 5,000 P.S.I. flex-hose and system induced shock loads.
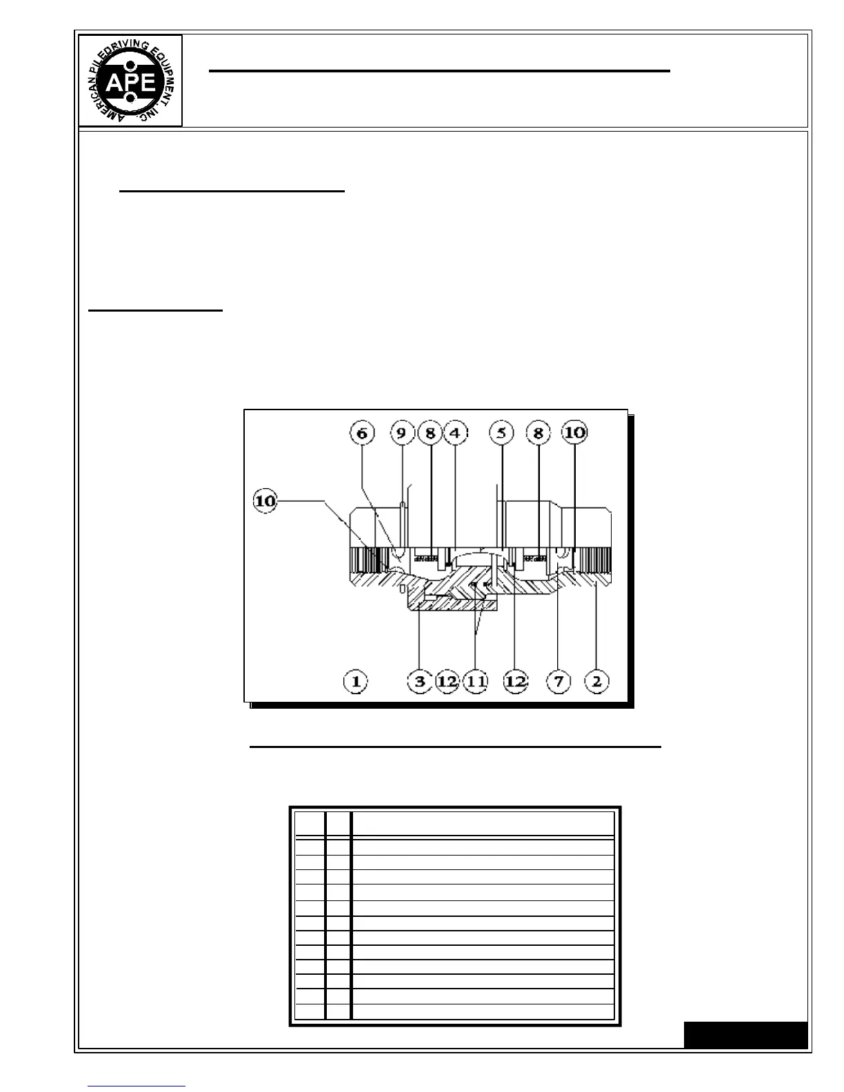
1 1 Q.D. Hydraulic Female Coupling #400301
2 1 Q.D. Hydraulic Male Coupling #400303
3 1 Q.D. Hydraulic Coupling Sleeve #400302
4 1 Q.D. O-Ring Carrier "A" #400202
5 1 Q.D. O-Ring Carrier "B" #400201
6 1 Q.D. Plunger #400101
7 1 Q.D. Plunger #400101
8 1 Q.D. Plunger Spring #400701
9 1 Retaining Ring - "Inverted External" #I-275
10 2 Retaining Ring - "Truarc Internal" #N5000-168
11 2 Parker O-Ring #2-230 & One Parback
12 2 Parker O-Ring #2-216
QtyItem Description
Table 2-D. Quick Disconnect Coupling Identification
Figure 2-D. Quick Disconnect Coupling Identification
Page 2-5