EasyManua.ls Logo

Apple Apple-1 - Page 11

Apple Apple-1
15 pages
Print Icon
To Next Page IconTo Next Page
To Next Page IconTo Next Page
To Previous Page IconTo Previous Page
To Previous Page IconTo Previous Page
Loading...
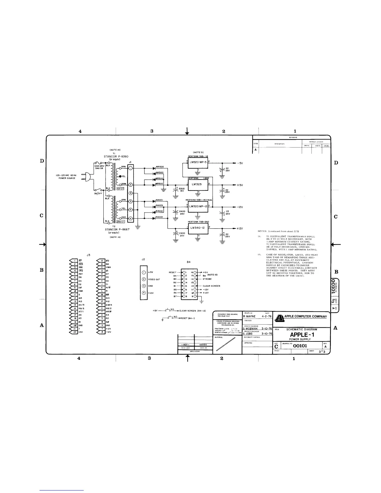
105-125 VAC 60 Hz
POWER SOURCE
STANCOR P-8380
(or
equiv)
(N0TE15)
HEATSINK
TAB=
-|{
LM320 MP-5
X
HEATSINK
=SND
J3
+r'
HEATSINK TAB= -I5V
Nom.
*r'
STANCOR
P-8667
(or equiv)
z
2400
25V
LM320MP-I2
HEATSINK
TA6=GND
2400
25V
5
1
RF
<
A
02
2 RES
^
B BA
3
NM1
<*
C VMA
4 IRQ
^
D 01
5
RDY
<
E
D7
6
06 ^™F D5
7 D4
<"
H
D3
8
D2
^r
j Dl
9 D0
^
K R/W
\0
DMA
<
L
R
II
S
<
M
00
12
AI5
^
N AI4
13
AI3
^
P
AI2
14 All/5
<*
R
A
10/4
15
A9/3
^
s
A8/2
16
A7/I
^1
A6/BT
17
A5
^""u"" A4
18 A3
^
V
A2
19
Al
^
w A0
20
GNO
<
x
6ND
21 T
<
Y +I2V
22
+5V
<
Z -I2V
+
5V
VIDEO
OUT
GND
+
I2V
5V
12V
CLEAR
SCREEN (B4H2)
RESET
{B4-I)
REVISIONS
INITIALS and
UATK
URF'TC
CHECK
ENGRG
NOTES:
(continued from
sheet
2/3)
14. Tl
EQUIVALENT
TRANSFORMER
SHALL
BE
8
TO
10 VOLT
SECONDARY,
WITH
3 AMP
MINIMUM CURRENT
RATING.
T2
EQUIVALENT
TRANSFORMER
SHALL
BE
28 VOLT SECONDARY,
CENTER-
TAPPED, WITH
1 AMP
MINIMUM
RATING.
15. CASE OF
REGULATOR,
LM323, AND
HEAT
SINK TABS
OF
REMAINING
THREE REG-
ULATORS
ARE
ALL AT
DIFFERENT
ELECTRICAL POTENTIALS.
CAUTION
SHOULD
BE EXERCISED
TO
INSURE
AGAINST
DIRECT
ELECTRICAL
CONTACT
BETWEEN
THESE POINTS. THEY
MUST
NOT BE
SHORTED
TOGETHER,
NOR TO
THE
HEATSINK OF THE LM323.
T
APPLICATION
UNLESS
OTHERWISE
SPECIFIED
DIMENSIONS
ARE IN INCHES
TOLERANCES
ON;
FRACTIONS
=
H/16 .*
=
*.!
ANGLES
-
±1°
jm
-
±
03
SURFACE FINISH
v
,im
=
±
.01
DRAW
BY
R.WAYNE
4-2-76
DESIGN
ENGINEER
S- W
QZN
IAK
3-10-75
PROJECT
ENGINEER
S.J0BS
3-10-76
DOCUMENT CONTROL
o
OS
oi
APPLE
COMPUTER
COMPANY
title
SCHEMATIC
DIAGRAM
APPLE ~1
POWER SUPPLY
SIZE
DRAWING NO
OOlOl
SHEET
n
OF
3
OF
3
2

Related product manuals