EasyManua.ls Logo

arcweld 130i-ST - Page 44

arcweld 130i-ST
84 pages
Print Icon
To Next Page IconTo Next Page
To Next Page IconTo Next Page
To Previous Page IconTo Previous Page
To Previous Page IconTo Previous Page
Loading...
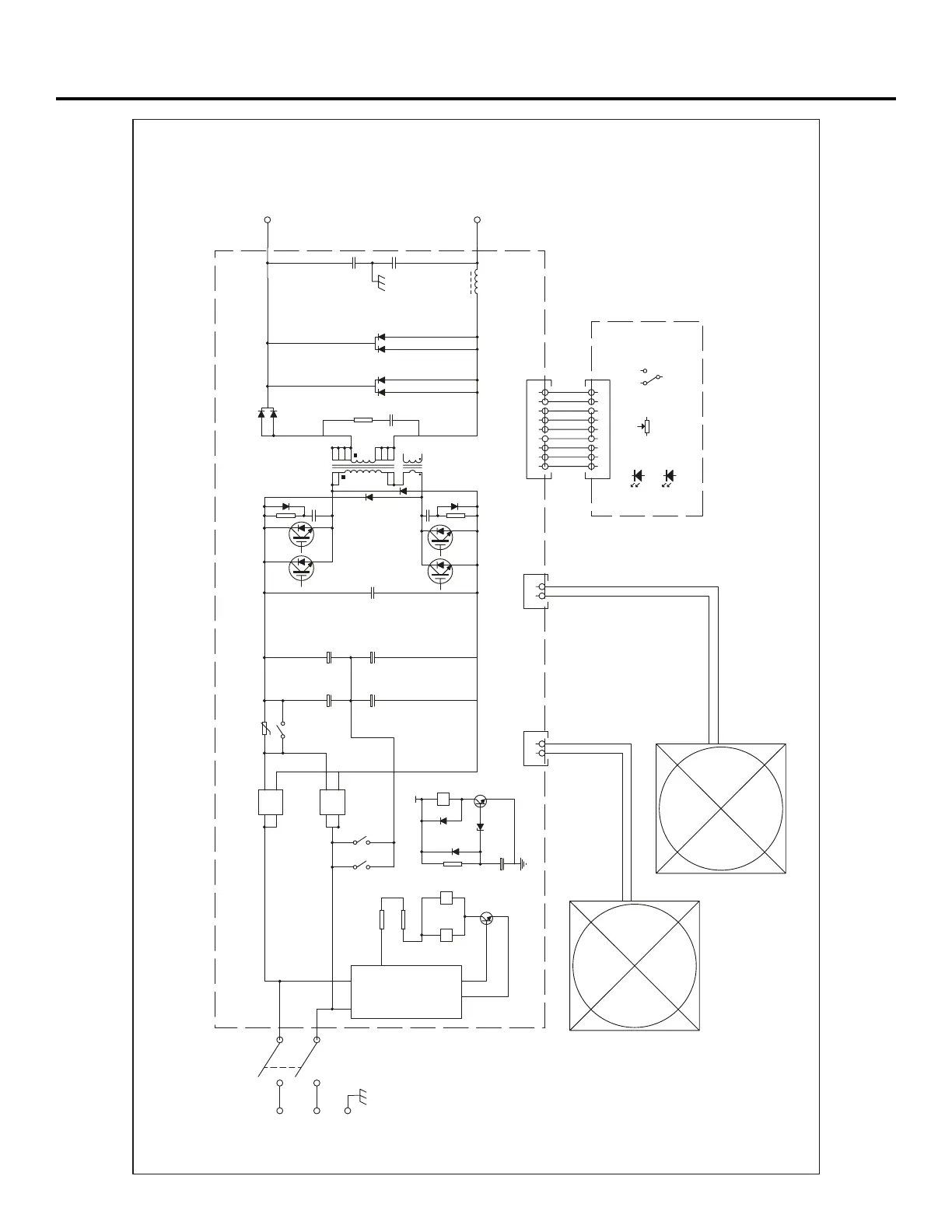
DIAGRAMA ELÉCTRICO
E-2 E-2
1
2
3
4
5
6
7
8
9
1
2
3
4
5
6
7
8
9
AC1
AC2
G
3
4
-t
1
3
-
4
+
2
1
3
-
4
+
2
12V
J
2 1
5
6
4
1
3
4
12
7
19 2
1
9
11 10
8
20
SALIDA+
SALIDA-
LED1
LED2
Output Control
Mode Switch
VR1
SW1
1
2
RECITIFIER
34
34
J
2 1
J
2 1
K2 K3
K2 K3
K1
K1
AC120V CONTROL
1
2
arcweld
®
130i-ST DV
VISTA FRONTAL
VISTA POSTERIOR
120V~ /230V~

Related product manuals