EasyManua.ls Logo

arcweld 200i-ST DV - Page 44

Default Icon
84 pages
Print Icon
To Next Page IconTo Next Page
To Next Page IconTo Next Page
To Previous Page IconTo Previous Page
To Previous Page IconTo Previous Page
Loading...
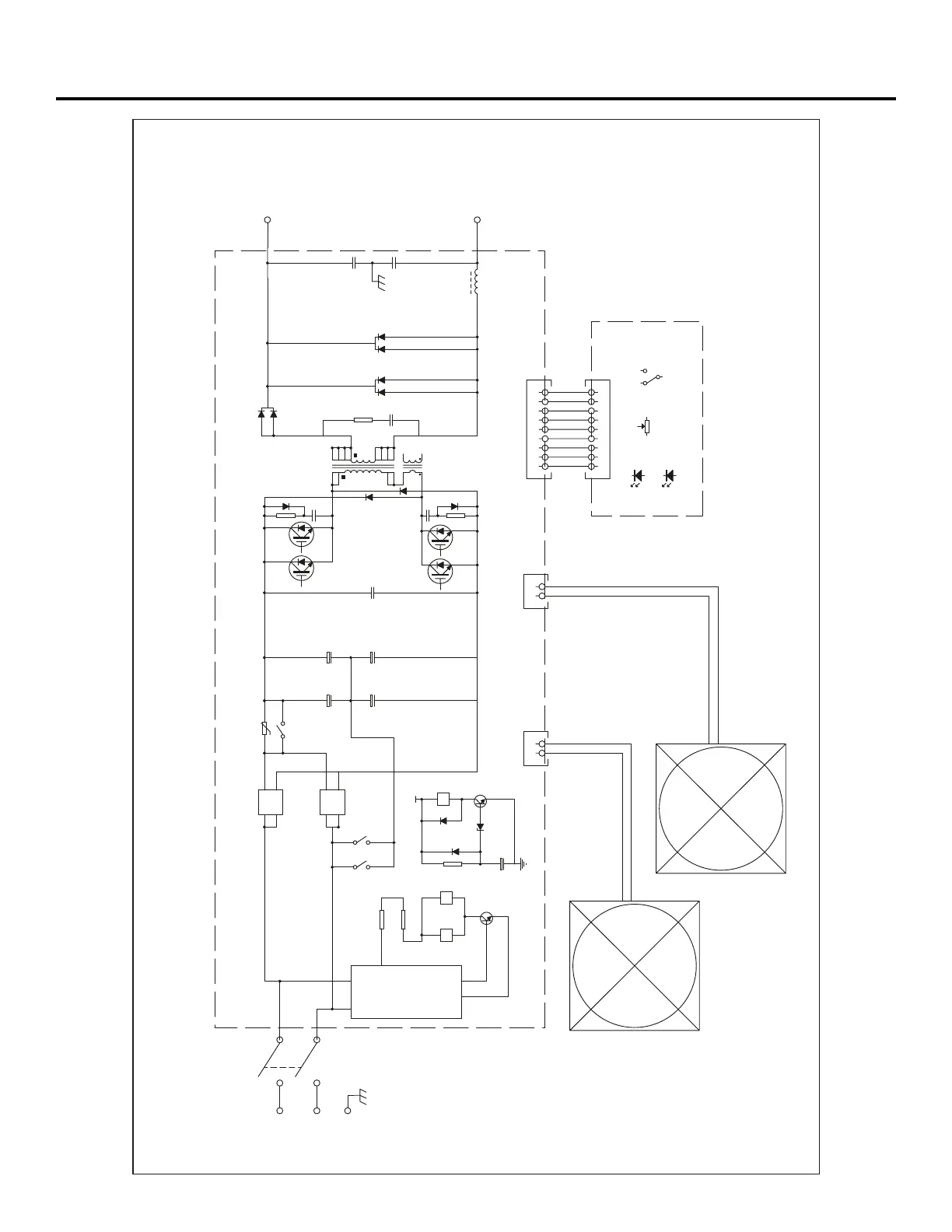
DIAGRAMA ELÉCTRICO
E-2 E-2
1
2
3
4
5
6
7
8
9
1
2
3
4
5
6
7
8
9
AC1
AC2
G
3
4
-t
1
3
-
4
+
2
1
3
-
4
+
2
12V
J
2 1
5
6
4
1
3
4
12
7
19 2
1
9
11 10
8
20
SALIDA+
SALIDA-
LED1
LED2
Output Control
Mode Switch
VR1
SW1
1
2
RECITIFIER
34
34
J
2 1
J
2 1
K2 K3
K2 K3
K1
K1
AC120V CONTROL
1
2
arcweld
®
130i-ST DV
VISTA FRONTAL
VISTA POSTERIOR
120V~ /230V~

Related product manuals