EasyManua.ls Logo

arcweld 200i-ST DV - Page 72

Default Icon
84 pages
Print Icon
To Next Page IconTo Next Page
To Next Page IconTo Next Page
To Previous Page IconTo Previous Page
To Previous Page IconTo Previous Page
Loading...
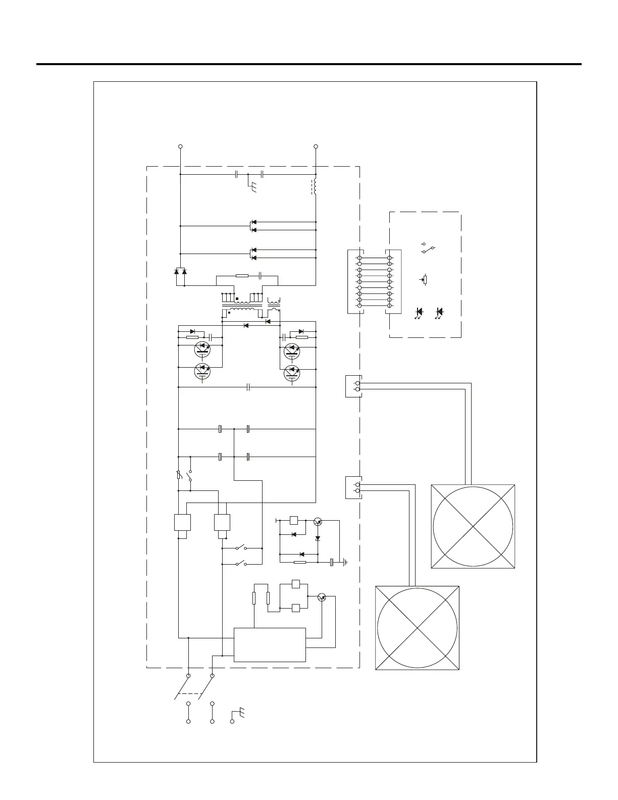
DIAGRAMA ELÉTRICO
E-2 E-2
1
2
3
4
5
6
7
8
9
1
2
3
4
5
6
7
8
9
AC1
AC2
G
3
4
-t
1
3
-
4
+
2
1
3
-
4
+
2
12V
J
2 1
5
6
4
1
3
4
12
7
19 2
1
9
11 10
8
20
FORA+
FORA-
LED1
LED2
Output Control
Mode Switch
VR1
SW1
1
2
RECITIFIER
34
34
J
2 1
J
2 1
K2 K3
K2 K3
K1
K1
AC120V CONTROL
1
2
arcweld
®
130i-ST DV
FRENTE DA MÁQUINA
TRASEIRA DA MÁQUINA
120V~ /230V~

Related product manuals