EasyManua.ls Logo

Ariston GENUS PREMIUM EVO HP 65

Ariston GENUS PREMIUM EVO HP 65
44 pages
To Next Page IconTo Next Page
To Next Page IconTo Next Page
To Previous Page IconTo Previous Page
To Previous Page IconTo Previous Page
Loading...
installation
22
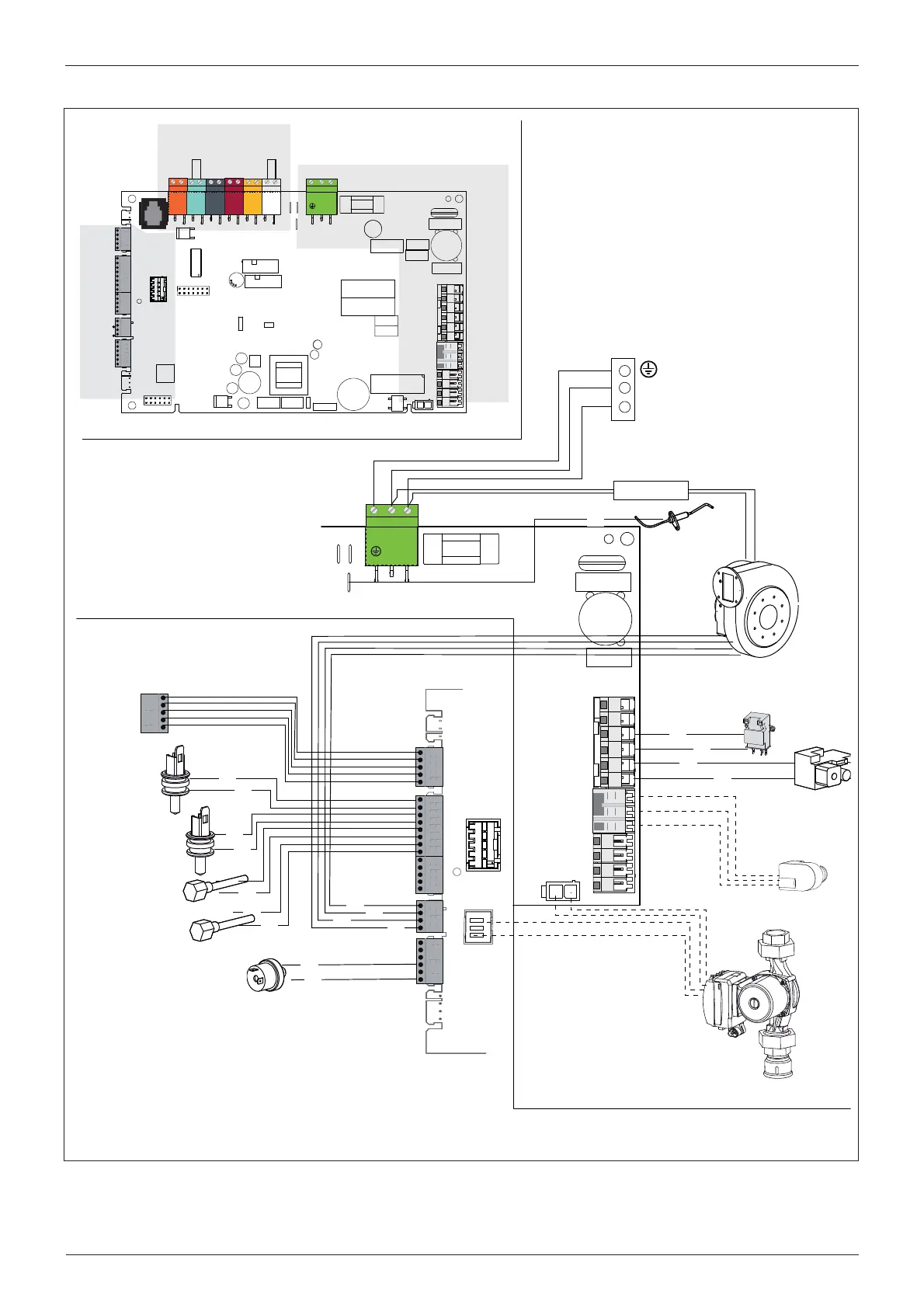
N
N
FLAME
L
L
BUS
TB
TA2 SE TNK SOL TA1
CN14
CN13
CN9
1
CN19
CN1
1
1
CN8
1
CN6
1
1
Peripheral unit
LV connections
HV connections
HV connection
N
N
N
FLAME
L
L
L
CN19
CN2
CN11
1
1
Gr
Detection
electrode
Fan
CN11
1
LV connection
Display
C.H. Return
temp. probe
C.H. Flow
temp. probe
Minimum water
pressure switch
Rd
Rd
Bl
Bl
Bl
Bk
CN14
CN3
1
1
CN8
1
CN25
1
Ignitor
Diverter valve
CN9
1
Modulating
Circulation
Pump KIT
Gas valve
Bk
Bk
Br
Bl
Br
Br
Or
Or
Thermal fuse
Fume overheat
thermostat
CN6
FUSE 2A
CN18
Rd
Wh
Bk
Bl
GENUS PREMIUM EVO HP 115/150

Table of Contents

Other manuals for Ariston GENUS PREMIUM EVO HP 65

Related product manuals