EasyManua.ls Logo

Ariston GENUS PREMIUM EVO HP 85

Ariston GENUS PREMIUM EVO HP 85
64 pages
To Next Page IconTo Next Page
To Next Page IconTo Next Page
To Previous Page IconTo Previous Page
To Previous Page IconTo Previous Page
Loading...
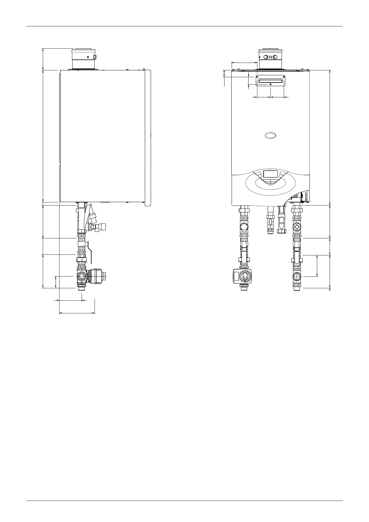
instalación
installation
32
GENUS PREMIUM HP EVO 45/65
145
39
42
75 75
76518695186
122
7451918691189
66
122
126
199

Table of Contents

Other manuals for Ariston GENUS PREMIUM EVO HP 85

Related product manuals