EasyManua.ls Logo

Ariston GENUS PREMIUM EVO HP 85

Ariston GENUS PREMIUM EVO HP 85
64 pages
To Next Page IconTo Next Page
To Next Page IconTo Next Page
To Previous Page IconTo Previous Page
To Previous Page IconTo Previous Page
Loading...
instalación
installation
34
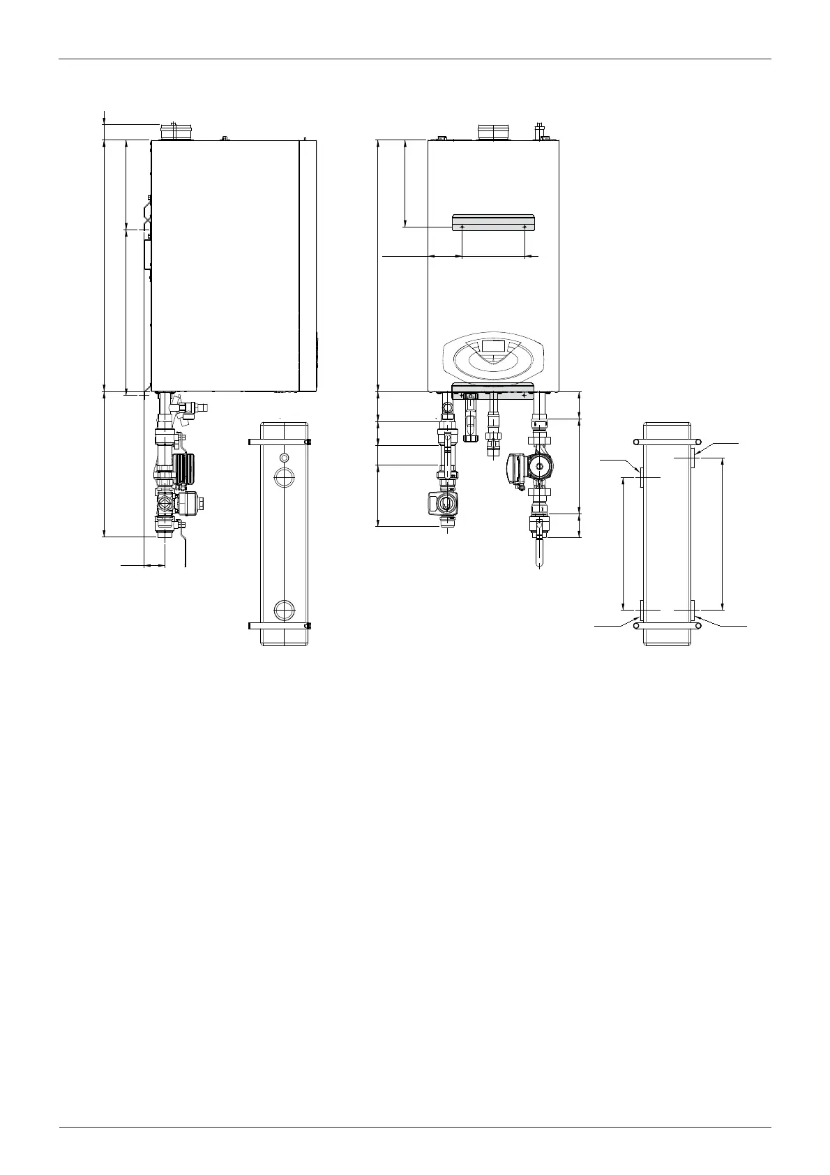
GENUS PREMIUM EVO HP 115/150 GENUS PREMIUM EVO HP 115/150
54890515
75
585,5 317
122
(2x)
221
(2x)
307
890
9633784
470
540
10685218 70
Rp 2"
Rp 2"Rp 2"
Rp 2"

Table of Contents

Other manuals for Ariston GENUS PREMIUM EVO HP 85

Related product manuals