EasyManua.ls Logo

Armstrong A95UH - Non-Direct Vent Exhaust Piping; Details of Exhaust Piping Terminations for Non-Direct Vent Applications

Armstrong A95UH
48 pages
Print Icon
To Next Page IconTo Next Page
To Next Page IconTo Next Page
To Previous Page IconTo Previous Page
To Previous Page IconTo Previous Page
Loading...
506501-01Page 28 of 48 Issue 1031
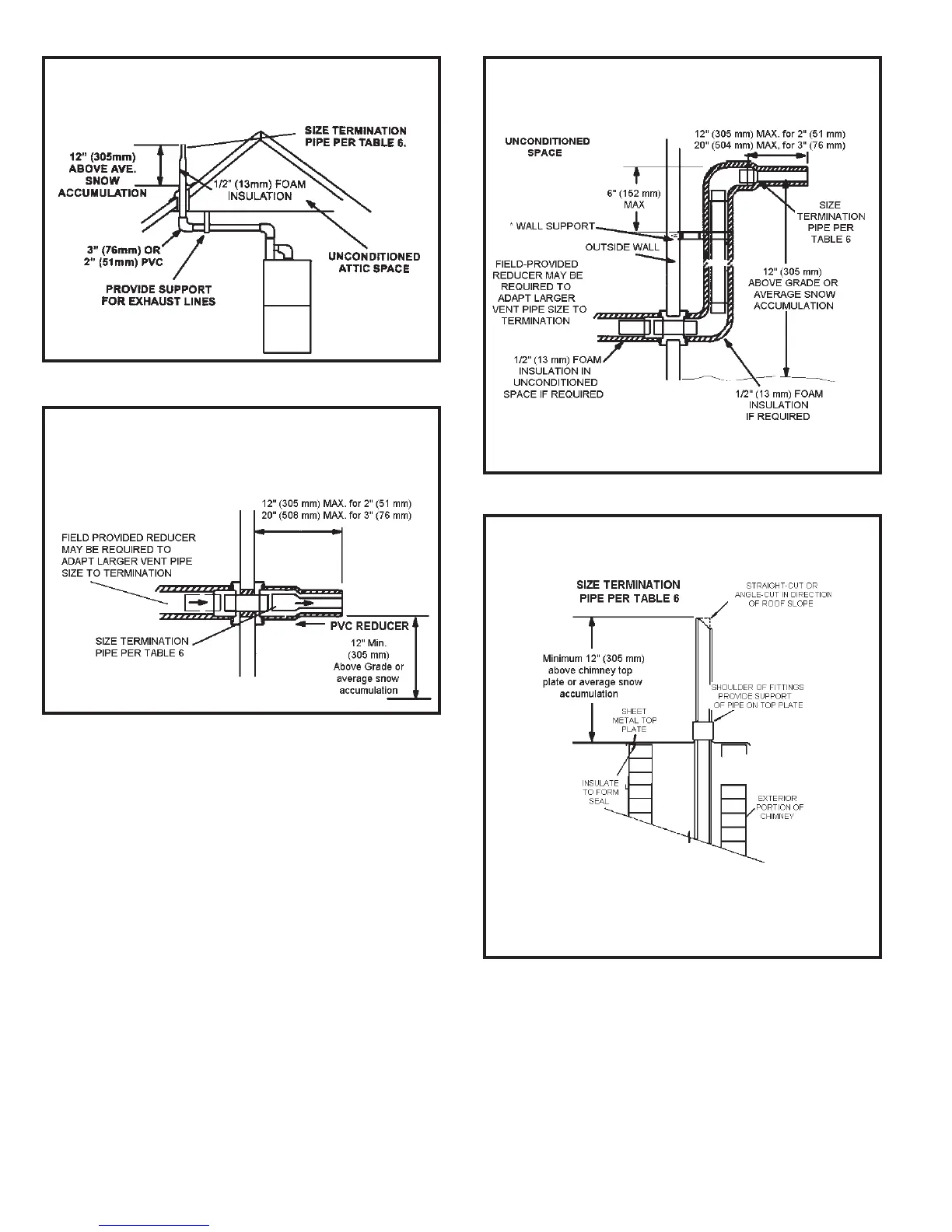
3. If exhaust piping must be run up a sidewall to position
above snow accumulation or other obstructions, piping
must be supported every 24” (610 mm) as shown in
Figure 39. When exhaust piping must be run up an
outside wall, any reduction in exhaust pipe size must be
done after the final elbow.
Condensate Piping
This unit is designed for either right or left side exit of
condensate piping in upflow applications. In horizontal
applications, the condensate trap must extend below the
unit. An 8” service clearance is required for the condensate
trap. Refer to Figure 41 for condensate trap locations.
NON-DIRECT VENT ROOF TERMINATION KIT
(15F75 or 44J41)
Figure 37
NON-DIRECT VENT FIELD SUPPLIED WALL
TERMINATION
Figure 38
NON-DIRECT VENT FIELD SUPPLIED WALL
TERMINATION EXTENDED OR (15F74)
WALL TERMINATION VENT PIPE EXTENDED
Figure 39
* Use wall support every 24” (610 mm). Use two supports if extension
is greater than 24” but less than 48”.
NON-DIRECT VENT APPLICATION
USING EXISTING CHIMNEY
NOTE: Do not discharge exhaust gases directly into any chimney or
vent stack. If vertical discharge through an existing unused chimney
or stack is required. Insert piping inside chimney until the pipe open
end is above top of the chimney and terminates as illustrated. In any
exterior portion of chimney, the exhaust vent must be insulated.
Figure 40