EasyManua.ls Logo

Armstrong EHF-3 - Submittal Drawings

Armstrong EHF-3
32 pages
Print Icon
To Next Page IconTo Next Page
To Next Page IconTo Next Page
To Previous Page IconTo Previous Page
To Previous Page IconTo Previous Page
Loading...
Installation and Maintenance
EHU-600 Series Humidifiers
14
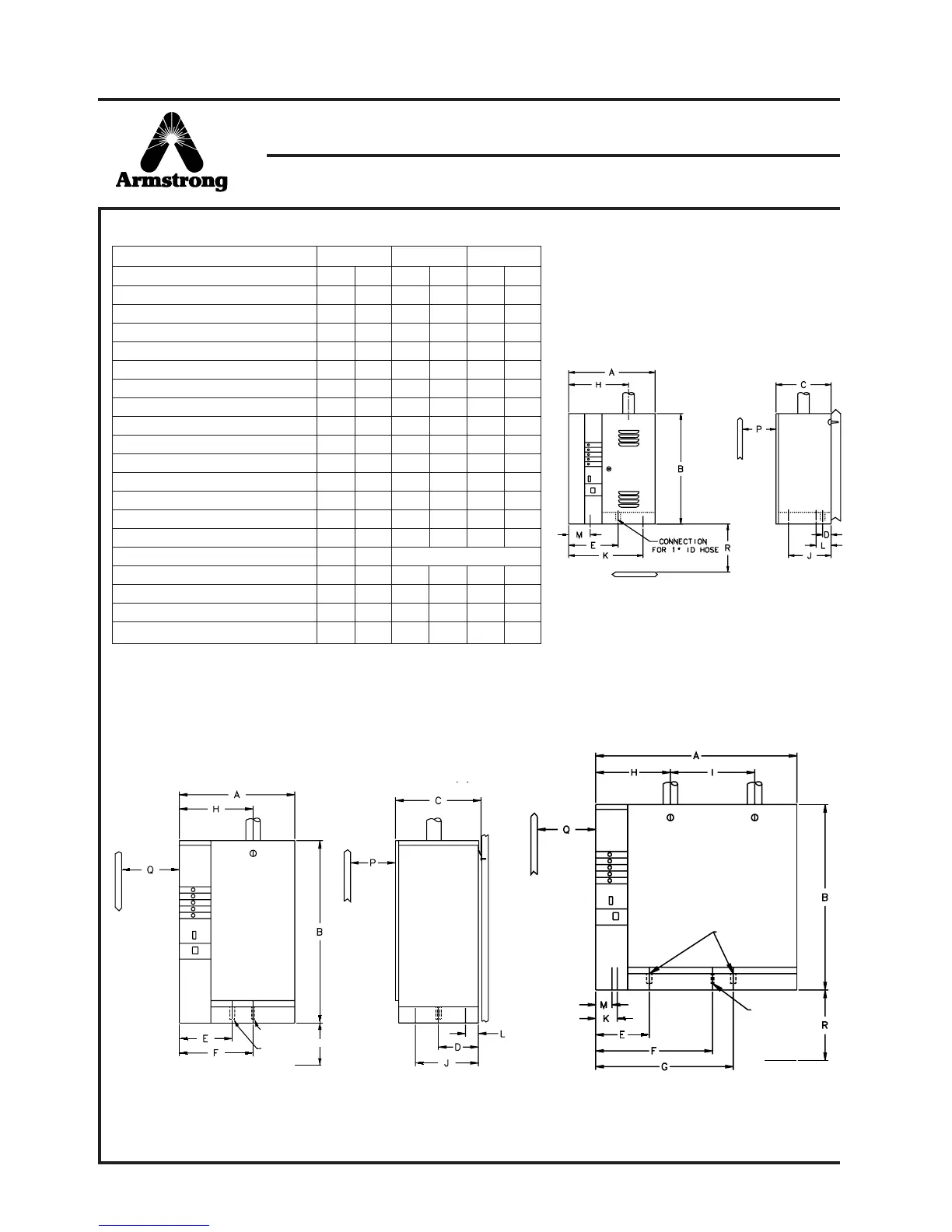
13. Submittal Drawings
Chart 14:1 Dimensional Data
EHU-600 EHU-601 EHU-602
in mm in mm in mm
"A" Width 18 457 18 457 31 787
"B" Height 23 584 28
1
/
2
724 28
1
/
2
724
"C" Depth 11
1
/
2
292 13
11
/
32
339 13
11
/
32
339
"D" Tank Drain (Side) 6
5
/
8
168 6
3
/
16
157 6
3
/
16
157
"E" Tank Drain (Front) 10
5
/
16
262 8
1
/
4
210 8
1
/
4
210
"F" Cabinet Drain 5/8" OD N/A N/A 11
1
/
2
292 18 457
"G" Tank #2 Drain (Front) N/A N/A N/A N/A 21
3
/
16
538
"H" Steam Outlet #1 12
1
/
2
318 11
1
/
2
292 11
1
/
2
292
"I" Steam Outlet #2 N/A N/A N/A N/A 13 330
"J" Water Supply* (Side) 8
1
/
4
210 9
13
/
16
249 9
13
/
16
249
"K" Water Supply* (Front) 15
1
/
2
394 3
5
/
16
84 3
5
/
16
84
"L" Electrical Supply (Side) 3
1
/
8
80 2 51 2 51
"M" Electrical Supply (Front) 4
1
/
2
114 2
1
/
2
64 2
1
/
2
64
"N" Fan Height (EHF-2) 13 330 N/A N/A N/A N/A
"N" Fan Height (EHF-3) 16 406 Remote Installation Only
"P" Front Clearance 18 457 24 610 24 610
"Q" Left Clearance 4 102 24 610 24 610
"R" Bottom Clearance 5 127 5 127 5 127
"S" Right Clearance 4 102 4 102 4 102
*Water Supply Conn. 3/8" Compression.
Unit is designed to mount on 16" centers.
2 lag screws are provided for EHU-600.
2 lag screws & bracket are provided for EHU-601 & 602.
Figure 14-1 Model EHU-600
(Front and Side View)
Figure 14-2: Model EHU-601 Figure 14-3: Model EHU-602
(Front and Side View) (Front View)
R
5/8'' O.D. Cabinet
Drain
3/4'' NPT
Tank Drain
1-1/2” I.D.
Hose Cuff
TANK DRAIN
1Z\x" I.D.
Hose Cuff
3/4" NPT
Tank Drain
5/8” O.D.
Cabinet Drain

Related product manuals